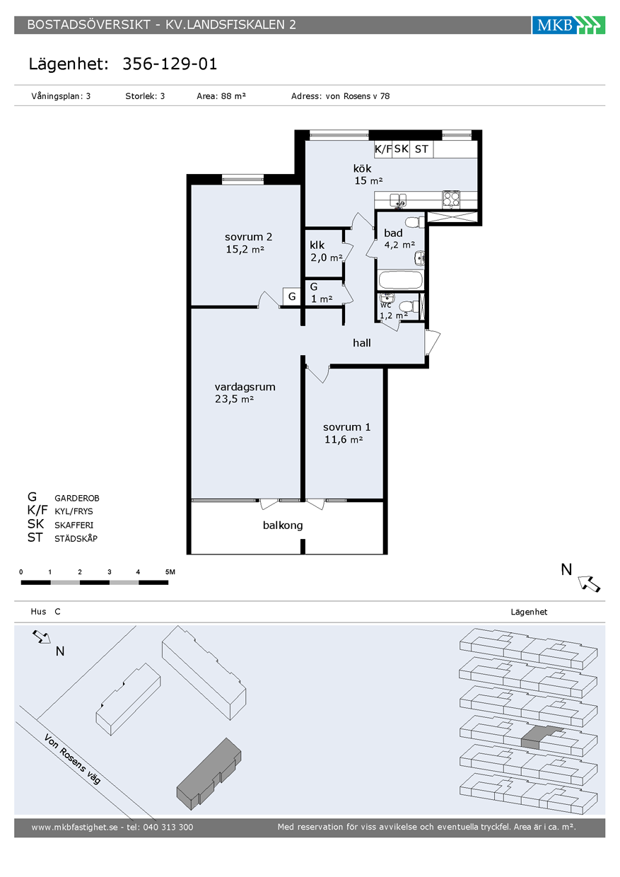
En trerumslägenhet finns att söka nu!
Lägenheten är belägen på tredje våningen i ett sexvåningshus och har en bra planlösning.
Lägenheten kommer gå genom en del renovering innan inflyttningen som avser följande:
--> Nya vita innerdörrar installeras
--> Parkett golv installeras i sovrum 1 & 2
--> Lägenheten målas om - samtliga rum (väggar och tak)
--> Köksinredning (insida skåp/hyllor) målas
--> Köksförnyelse kommer att ske. Vita luckor med ljusgrå kakel imitation som stänkskydd.
--> Ny köksfläkt installeras och ny spis med keramikhäll installeras
Resterande i lägenheten kommer att hyras ut i befintligt skick.
För mer information om lägenheten läs nedan beskrivning samt är ni välkomna på en fysisk visning.
Info om Lägenheten
Hall
Färg väggar: Vit
Golv: Vinylgolv
Kök
Utrustning: Spis med keramikhäll, Kyl/frys kombi, Kolfilterfläkt, diskmaskin
Färg på köksinredning: Vit
Färg väggar: Vit
Golv: Vinylgolv
Plats för matbord: Ja
Vardagsrum
Färg väggar: Vit
Golv: Parkett
Sovrum 1
Färg väggar: Vit
Golv: Parkett
Sovrum 2
Färg väggar: Vit
Golv: Parkett
Badrum
Utrustning: Badkar, Handfat, Wc, Badrumsskåp
Väggar: Helkaklad
Golv: Klinker
Gäst wc
Utrustning: Handfat, WC
Övrigt
Klädkammare: Ja
Säkerhetsdörr: Ja
Förråd: Finns i källaren
I hyran ingår: Kabel-TV, värme
Denna lägenhet omfattas av underhållshyra 2026, läs mer om hur detta fungerar och vad det innebär på vår hemsida https://www.mkbfastighet.se/kund/din-bostad/renovering-och-underhall/