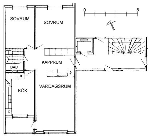
Välkommen till en ljus och välplanerad genomgående lägenhet om 71,6 kvm med inglasad balkong belägen på sjunde våningen.
-----------------------
Hyres ut i befintligt skick
-------------------
HALL
Väggar: vita
Golv: Vinylgolv
Förvaringsmöjligheter: Garderober
KÖK
Färg på köksinredning: Vit
Väggar: Vita
Golv: Vinylgolv
Stänkskydd: Vitt kakel
Utrustning: Diskmaskin, spis, kyl/frys och fläkt med kryddhylla
Plats för matbord: Ja
SOVRUM 1
Väggar: Vita
Golv: Parkett
SOVRUM 2
Väggar: Vita
Golv: Parkett
VARDAGSRUM
Väggar: Vita
Golv: Parkett
BADRUM
Väggar: Våtrumstapet
Golv: Plastmatta
Utrustning: badkar
ÖVRIGT
Säkerhetsdörr: Ja
Förråd: Finns
I hyran ingår: Kabel-TV och värme
Varmvatten: Individuell mätning
El: Ingår ej
El: Avtal är tecknat med vår elleverantör. Du betalar både den fasta avgiften och din egen förbrukning. Du kan byta leverantör när du vill. Varmvatten: Individuell mätning och debitering av varmvattenförbrukning för att spara vatten och värmeenergi. Du betalar för din förbrukning och den kommer att synas på din hyresavi. Internet: Fiber från MKB Net finns i din lägenhet. Du väljer själv vilken internetleverantör du vill ha via MKB Net och tecknar eget avtal.
El renovering
Elanläggningen i fastigheten byts just nu ut för att uppfylla dagens säkerhetskrav. Arbetet startade hösten 2025 och beräknas vara klart till slutet av maj. När elarbetet är utfört i respektive lägenhet läggs en hyreshöjning på trappvis, baserat på lägenhetens storlek.
Den preliminära höjningen är:
1 rok +108 kr,
2 rok +145 kr,
3 rok +187 kr,
4 rok +219 kr
Vid kontraktsskrivning bifogas en informationsblankett med fullständig beskrivning av åtgärderna.
Detta ingår i hyran Värme, Kallvatten, TV-tjänsten Sappa med 20 digitala TV-kanaler. Du får också tillgång till playtjänsten Sappa Play.
Denna lägenhet omfattas av underhållshyra, läs mer om hur detta fungerar och vad det innebär på vår hemsida. https://www.mkbfastighet.se/kund/din-bostad/renovering-och-underhall/
OBS: Den presenterade hyran avser år 2026.
Inflyttning Det datum som presenteras i Ledig fr.o.m. är det datum som vi skriver kontrakt från.
Avvikelser från planritning kan förekomma
Visst slitage kan innebära fläckar på väggar, mindre repor i golv eller mindre märken på vitvaror.
Om två personer söker en lägenhet tillsammans, måste både huvudsökande och medsökande var och en klara en (1,0) gång månadshyran efter skatt.