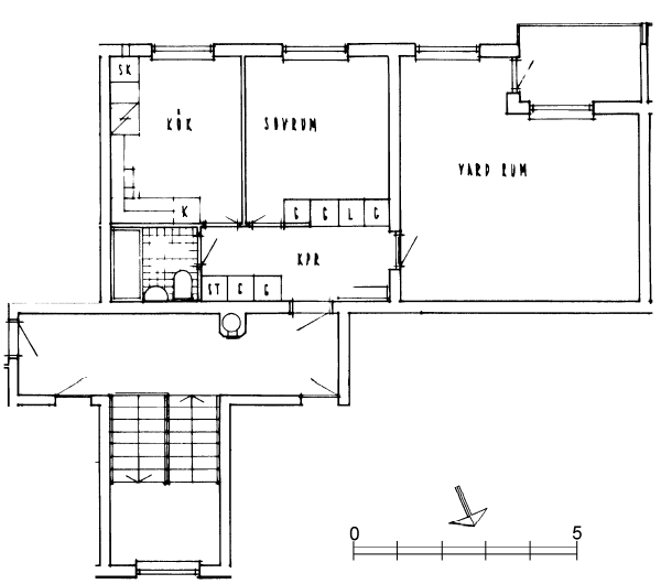
Lägenhets beskrivning
Välkommen till en ljus och välplanerad enkelsidig lägenhet om 60 kvm med balkong belägen på fjärde våningen.
--------------------
Hyrs ut i befintligt skick, vilket innebär att visst slitage kan förekomma.
Hall
Färg väggar: Vita
Golv: Vinylgolv i trä imitation
Förvaringsmöjligheter: Garderober
Kök
Utrustning: Kyl/frys, spis med keramikhäll
Färg på köksinredning: Vit
Färg väggar: Vita
Golv: Vinylgolv i trä imitation
Plats för matbord: Ja
Det finns inte möjlighet att installera diskmaskin
Vardagsrum
Färg väggar: Vita
Golv: Parkett
Sovrum 1
Färg väggar: Vita
Golv: Parkett
Badrum
Utrustning: Badkar, tvättställ, WC- stol
Väggar: Helkaklat
Golv: Klinker
Det finns inte möjlighet att installera tvättpelare
I hyran ingår: Kabel Tv, värme.
Varmvatten: Individuellmätning
El: ingår ej
Förråd: finns
Säkerhetsdörr: Ja
Övriga kostnader
El: Avtal är tecknat med vår elleverantör. Du betalar både den fasta avgiften och din egen förbrukning. Du kan byta leverantör när du vill. Varmvatten: Individuell mätning och debitering av varmvattenförbrukning för att spara vatten och värmeenergi. Du betalar för din förbrukning och den kommer att synas på din hyresavi. Internet: Fiber från MKB Net finns i din lägenhet. Du väljer själv vilken internetleverantör du vill ha via MKB Net och tecknar eget avtal.
Detta ingår i hyran Värme, Kallvatten, TV-tjänsten Sappa med 20 digitala TV-kanaler. Du får också tillgång till playtjänsten Sappa Play.
Denna lägenhet omfattas av underhållshyra, läs mer om hur detta fungerar och vad det innebär på vår hemsida. https://www.mkbfastighet.se/kund/din-bostad/renovering-och-underhall/
OBS: Den presenterade hyran avser år 2026.
Inflyttning Det datum som presenteras i Ledig fr.o.m. är det datum som vi skriver kontrakt från.
Avvikelser från planritning kan förekomma
Visst slitage kan innebära fläckar på väggar, mindre repor i golv eller mindre märken på vitvaror.
Om två personer söker en lägenhet tillsammans, måste både huvudsökande och medsökande var och en klara en (1,0) gång månadshyran efter skatt.