OBS! Ingen visning kommer att erbjudas. Du behöver ta beslut utifrån informationen i annonsen.
Lägenhets beskrivning
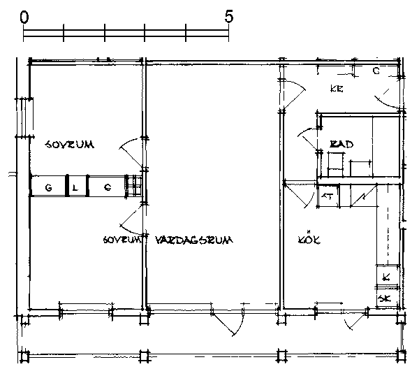
Välkommen till en ljus och välplanerad gavellägenhet om 66,5 kvm med balkong belägen på nionde våningen.
--------------------
Renovering utförs innan ny hyresgäst tillträder.
Smal köksförnyelse
Badrumsrenovering
Målning av hela lägenheten
Nytt parkettgolv i vardagsrum, sovrum 1 och sovrum 2
Vinylgolv i hall och kök.
Ny smal diskmaskin
Nytt fläkt, spis och kombi kyl & frys.
Övrigt hyrs lägenheten ut i befintligt skick, vilket innebär att visst slitage kan förekomma.
-------------------
HALL
Väggar: Vita
Golv: Vinyl i träimitation
Förvaringsmöjligheter: Garderober
KÖK
Väggar: Vita
Golv: Plast
Färg på köksluckor: Beige
Stänkskydd: Kompaktpanel - cement
Utrustning: Diskmaskin, kyl/frys, spis, fläkt
Plats för matbord: Ja
Exempelbild på materialval i kök presenteras under bilder. obs, detta är inte en ritning på köket.
SOVRUM
Väggar: Vita
Golv: Parkett
VARDAGSRUM
Väggar: Vita
Golv: Parkett
BADRUM
Väggar: Kakel
Golv: Klinker
Utrustning: Badkar, tvättställ, wc, badrumsskåp
Det finns inte möjlighet att installera tvättpelare
Övriga kostnader
El: Avtal är tecknat med vår elleverantör. Du betalar både den fasta avgiften och din egen förbrukning. Du kan byta leverantör när du vill. Varmvatten: Individuell mätning och debitering av varmvattenförbrukning för att spara vatten och värmeenergi. Du betalar för din förbrukning och den kommer att synas på din hyresavi. Internet: Fiber från MKB Net finns i din lägenhet. Du väljer själv vilken internetleverantör du vill ha via MKB Net och tecknar eget avtal.
Detta ingår i hyran Värme, Kallvatten, TV-tjänsten Sappa med 20 digitala TV-kanaler. Du får också tillgång till playtjänsten Sappa Play.
Denna lägenhet omfattas av underhållshyra, läs mer om hur detta fungerar och vad det innebär på vår hemsida. https://www.mkbfastighet.se/kund/din-bostad/renovering-och-underhall/
OBS: Den presenterade hyran avser år 2026.
Inflyttning Det datum som presenteras i Ledig fr.o.m. är det datum som vi skriver kontrakt från.
Avvikelser från planritning kan förekomma
Visst slitage kan innebära fläckar på väggar, mindre repor i golv eller mindre märken på vitvaror.
Om två personer söker en lägenhet tillsammans, måste både huvudsökande och medsökande var och en klara en (1,0) gång månadshyran efter skatt.