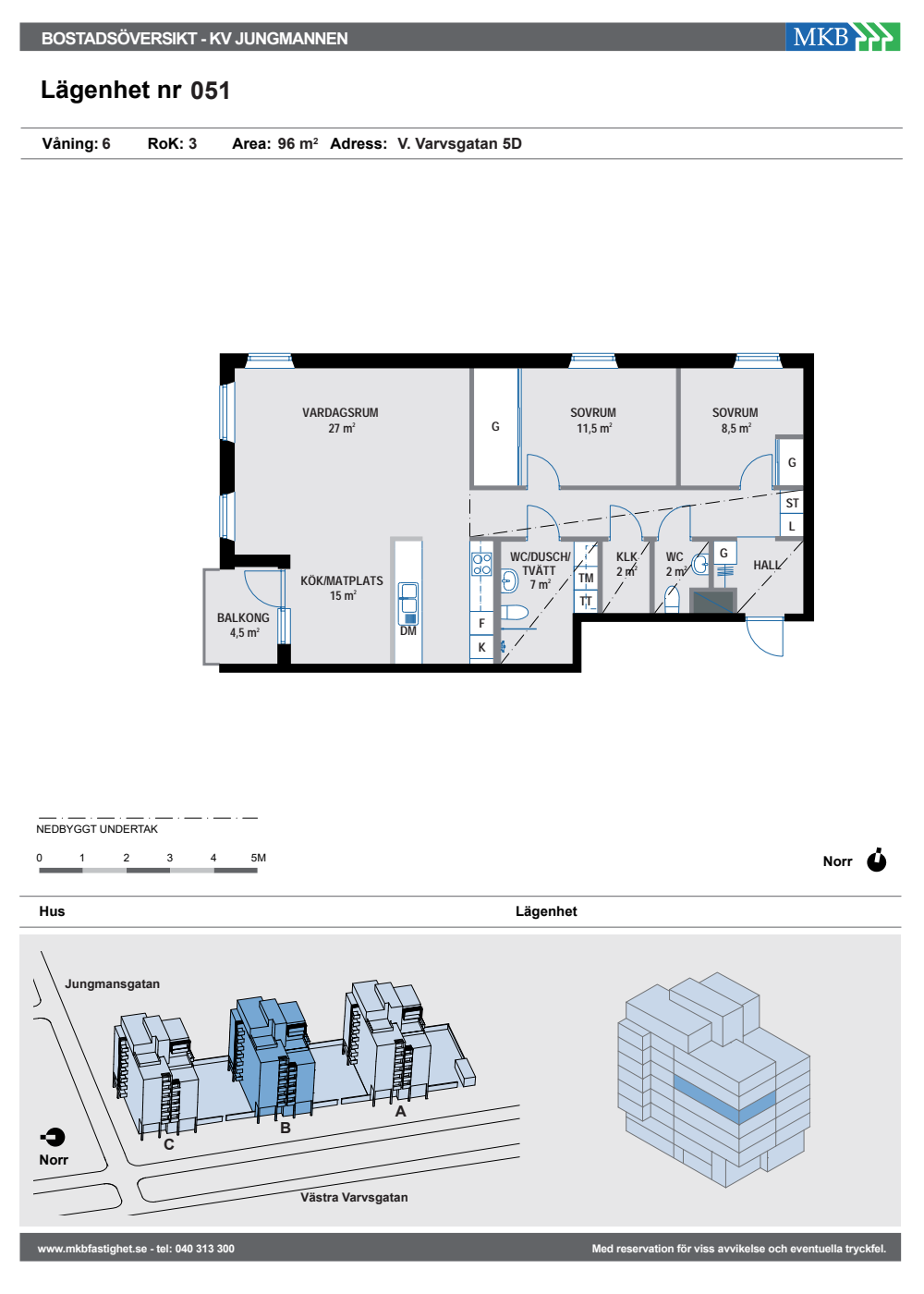
Hörnlägenhet med balkong i söderläge. Tre rum och kök. Fastigheten ligger mitt emot Kockums Fritid, nära kommunikation, träning, fritid och stor matvaruhandel. Denna lägenhet har en öppen planlösning mellan kök och vardagsrum, som till viss del avdelas med en låg kökdel mellan kök och matplats. Lägenheten har ett vackert ljusinsläpp. Det är vitmålade väggar i hela lägenheten och ekparkettgolv, förutom i hallen och kök där det ligger grått klinkergolv. Helkaklat badrum med vitt kakel och svart klinkergolv. Den vita köksinredningen kommer från Myresjökök, bänkskivan är antracitgrå och kaklet är vitt. Köket har diskmaskin med täcklucka, spis med induktionshäll och rostfri kyl och frys. Lägenheten har säkerhetsdörr. Det finns cykel förråd på gården.
Garage och parkeringsmöjlighet finns i området.
Lägenheten blev målad i augusti 2022 och är mycket fräsch. Kund har målat lite fondväggar men återställer om man inte önskar behålla färgen.
Kök
Väggar: vita
Golv: Klinker
Plats för matbord: Ja, öppen planlösning
Hall
Färg väggar: Vitt
Golv: Klinker/parkett
Förvaringsmöjligheter: ja, garderob och klädkammare
Vardagsrum
Färg väggar: Vitt
Golv: Parkett
Sovrum 1 och 2
Färg väggar: Vitt
Golv: Parkett
Förvaringsmöjligheter: Stor garderob med skjutdörrar i sovrum 2
Badrum/WC
Färg väggar: Helkaklat i vitt
Golv: Grå klinker
Utrustning: Dusch, tvättmaskin, torktumlare och handdukstork
Övrigt:
Säkerhetsdörr: Ja
Klädkammare: ja
Denna lägenhet omfattas av underhållshyra, läs mer om hur detta fungerar och vad det innebär på vår hemsida https://www.mkbfastighet.se/kund/din-bostad/renovering-och-underhall