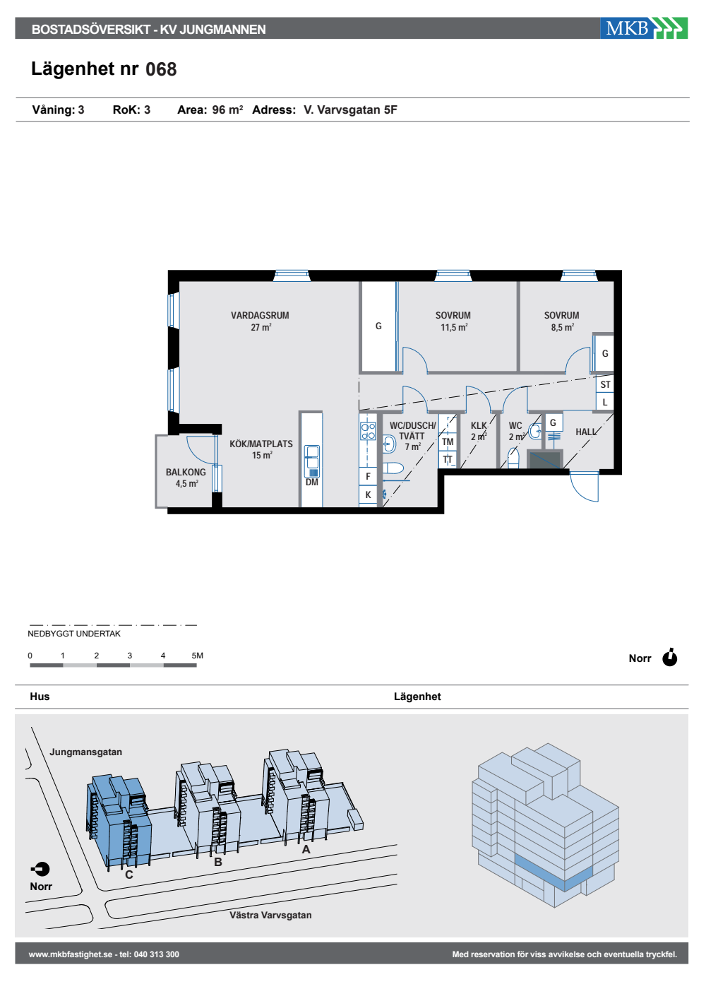
Hörnlägenhet med balkong i söderläge. Tre rum och kök. Fastigheten ligger mitt emot Kockums Fritid, nära kommunikation, träning, fritid och stor matvaruhandel. Denna lägenhet har en öppen planlösning mellan kök och vardagsrum, som till viss del avdelas med en låg köksdel mellan kök och matplats. Lägenheten har ett vackert ljusinsläpp. Det är vitmålade väggar i hela lägenheten och ekparkettgolv, förutom i hallen där det är mörkgrått klinkertgolv. Helkaklat badrum med vitt kakel och svart klinkergolv. Den vita köksinredningen kommer från Myresjökök, bänkskivan är antracitgrå och kaklet är vitt. Köket har diskmaskin med täcklucka, spis med induktionshäll och rostfri kyl och frys. Lägenheten har säkerhetsdörr. Garage och parkeringsmöjlighet finns i området.
Lägenheten kommer att målas. Tak och väggar.
Vi byter ut skadade luckor/lådor i kök
Vi byter ut sidoskiva på kommod (som är vattenskadad)
Ny mjukfog i duschzon samt nya gummilister duschdörrar.
Lägenheten är tillgänglig för inflyttning den första maj, om man kan och vill flytta in tidigare.
Kök
Väggar: vita
Golv: Parkett
Plats för matbord: Ja, öppen planlösning
Hall
Färg väggar: Vitt
Golv: Klinker/parkett
Förvaringsmöjligheter: ja, garderob och klädkammare
Vardagsrum
Färg väggar: Vitt
Golv: Parkett
Sovrum 1 och 2
Färg väggar: Vitt
Golv: Parkett
Förvaringsmöjligheter: Stor garderob med skjutdörrar i sovrum 2
Badrum/WC
Färg väggar: Helkaklat i vitt
Golv: Grå klinker
Utrustning: Dusch, tvättmaskin, torktumlare och handdukstork
Övrigt:
Säkerhetsdörr: Ja
Klädkammare: ja
Extra förråd finns i källare ca 3 kvm. Garage finns i närheten via Malmö P eller Aimo Park.
Denna lägenhet omfattas av underhållshyra, läs mer om hur detta fungerar och vad det innebär på vår hemsida https://www.mkbfastighet.se/kund/din-bostad/renovering-och-underhall/