UNGDOMSBOENDE!
På bästa, havsnära läget erbjuder vi nu en smart planerad etta i Stämpen Ungdom. Denna lägenhet är en ungdomsbostad och riktar sig till dig som är mellan 18-25 år. Fastigheten är byggd i anslutning till en sporthall. På taket finns en stor gemensam takterrass där man kan grilla, umgås eller bara njuta av den fantastiska utsikten. Lägenheten är smart planerad för att du ska få så mycket plats som möjligt utan att det känns för trångt. Här har ni bara några minuters gångavstånd till såväl matbutiker, en rad olika träningsanläggningar och härliga parker.
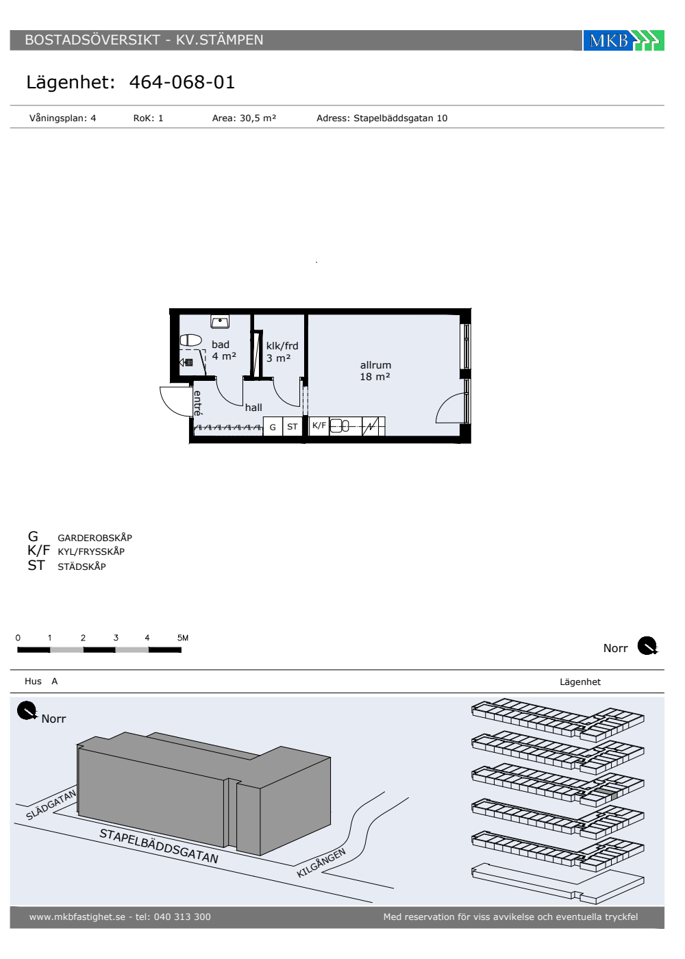
I denna lägenhet finns förrådet i lägenheten.
Fin lägenhet som har utsikt mot skolan. På detta plan ligger tvättstuga och takterrass.
De presenterade bilderna är broschyrbilder.
Hall
Golv: Svart linoleum
Vägg: Vitmålad
Övrigt: Hatthylla i aluminium
Förråd/Klädkammare
Allrum
Golv: Svart linoleum
Vägg: Vitmålad
Sovrum
Golv: Svart linoleum
Vägg: Vitmålad
Köksdel
Golv: Svart linoleum
Vägg: Vitmålad Stänkskydd: Gråa keramiska plattor Bänkskiva/ diskbänk: Rostfritt stål
Köksluckor: Vita
Vitvaror: Spis med häll, spisfläkt, vit kyl/ frys.
Badrum
Golv: Svart våtrumsmatta Vägg: Två svarta väggar med våtrumsmatta och övriga vita målade. Övrigt: Vitt väggskåp, duschväggar
ÖVRIG INFORMATION OM FASTIGHETEN
Parkering/ Garage Medlemskap i bilpool ingår till 2027. Garage och parkeringsplatser finns i närheten.
Förråd/ Tvättstuga
Samtliga lägenheter har förråd. Antingen i lägenheten eller på våningsplan 2, 3, 5 eller 6. Tvättstugan är belägen på våningsplan 4.
Tv/ Bredband I huset finns det MKB-Net där du har möjlighet att välja bland olika leverantörer. Vad det gäller TV ingår ett mindre utbud av kanaler, vill man ha fler får man kontakta Sappa.se. Det är bredbandstelefoni i huset.
IMDB I detta hus är det individuell mätning och debitering av varmvattenförbrukningen. Detta gör vi för att spara vatten och värmeenergi i dagens utsatta miljö. Det blir även mer rättvist för dig som kund då du endast betalar för din egen förbrukning samtidigt som det värnar om miljön genom ökad medvetenhet.
www.mkbfastighet.se