Välkommen till en ljus och välplanerad genomgående lägenhet om 71,6 kvm med inglasad balkong belägen på femte våningen.
Renovering inför inflytt:
Tak i hall och sovrum ska skrapas och målas.
Arbetet utförs om du väljer något av följande alternativ:
Inflytt 1 juni, och arbetet utförs efter att du flyttat in.
Inflytt 16 juni, och arbetet utförs innan du flyttar in.
Övrigt hyrs lägenheten ut i befintligt skick, vilket innebär att visst slitage kan förekomma.
-------------------
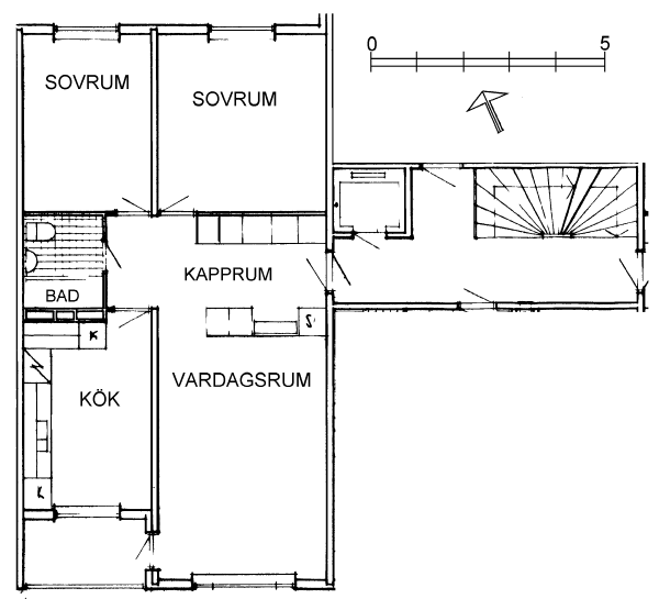
HALL
Väggar: Vita
Golv: Vinyl i träimitation
Förvaringsmöjligheter: Garderober
KÖK
Väggar: Vita
Golv: Vinyl i träimitation
Färg på köksinredning: Vit
Stänkskydd: Vitt kakel
Utrustning: kyl/frys, spis, fläkt
Plats för matbord: Ja
Det finns inte möjlighet att installera diskmaskin
SOVRUM
Väggar: Vita
Golv: Parkett
SOVRUM
Väggar: Vita
Golv: Parkett
VARDAGSRUM
Väggar: Vita
Golv: Parkett
BADRUM
Väggar: Vitt kakel
Golv: Svart klinker
Utrustning: Badkar, tvättställ, wc, badrumsskåp
Det finns inte möjlighet att installera tvättpelare
ÖVRIGT
Säkerhetsdörr: Ja
Förråd: Finns
I hyran ingår: Kabel-TV och värme
Varmvatten: Individuell mätning
El: Ingår ej
Balkong: Balkong med inglasning och söderläge.
Denna lägenhet omfattas av underhållshyra, läs mer om hur detta fungerar och vad det innebär på vår hemsida.
https://www.mkbfastighet.se/kund/din-bostad/renovering-och-underhall/
OBS: Hyran som presenteras är hyran som avser 2026 efter hyreshöjning.
Avvikelser från planritning kan förekomma
El renovering
Elanläggningen i fastigheten byts just nu ut för att uppfylla dagens säkerhetskrav. Arbetet startade hösten 2025 och beräknas vara klart till slutet av maj. När elarbetet är utfört i respektive lägenhet läggs en hyreshöjning på trappvis, baserat på lägenhetens storlek.
Den preliminära höjningen är:
1 rok +108 kr,
2 rok +145 kr,
3 rok +182 kr,
4 rok +219 kr
Vid kontraktsskrivning bifogas en informationsblankett med fullständig beskrivning av åtgärderna.
Övriga kostnader
El: Avtal är tecknat med vår elleverantör. Du betalar både den fasta avgiften och din egen förbrukning. Du kan byta leverantör när du vill. Varmvatten: Individuell mätning och debitering av varmvattenförbrukning för att spara vatten och värmeenergi. Du betalar för din förbrukning och den kommer att synas på din hyresavi. Internet: Fiber från MKB Net finns i din lägenhet. Du väljer själv vilken internetleverantör du vill ha via MKB Net och tecknar eget avtal.
Detta ingår i hyran Värme, Kallvatten, TV-tjänsten Sappa med 20 digitala TV-kanaler. Du får också tillgång till playtjänsten Sappa Play.
Denna lägenhet omfattas av underhållshyra, läs mer om hur detta fungerar och vad det innebär på vår hemsida. https://www.mkbfastighet.se/kund/din-bostad/renovering-och-underhall/
OBS: Den presenterade hyran avser år 2026.
Inflyttning Det datum som presenteras i Ledig fr.o.m. är det datum som vi skriver kontrakt från.
Avvikelser från planritning kan förekomma
Visst slitage kan innebära fläckar på väggar, mindre repor i golv eller mindre märken på vitvaror.
Om två personer söker en lägenhet tillsammans, måste både huvudsökande och medsökande var och en klara en (1,0) gång månadshyran efter skatt.