OBS! Stambyte planeras inom en femårsperiod.
Därför måste ett godkännande för de standardhöjande åtgärderna måste skrivas under i samband med signering av hyreskontraktet.
Månadshyran kommer sedan att höjas med cirka 200-800 kronor, beroende på lägenhetens storlek och hur omfattande standardhöjningen blir.
Vid stambyte renoveras badrummen och förses med nya vatten- och avloppsstammar, tätskikt, sanitetsporslin, kakel, klinker eller plastmatta, blandare med mera. Efter stambytet kommer kostnaden för varmvatten att mätas och debiteras individuellt, varmvatten kommer alltså ej längre ingå i hyran.
Hej och välkomna på visning!
Nu har du chansen att söka en mysig 2:a med balkong i gröna Augustenborg!
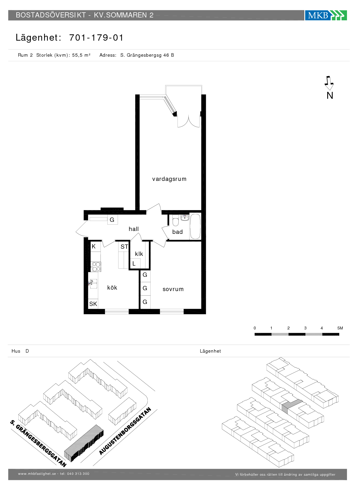
Lägenheten är belägen på våning 3 i ett 4-våningshus utan hiss och har en praktisk och trivsam planlösning.
Inga åtgärder är planerade och lägenheten hyrs ut i befintligt skick, därför är det viktigt att komma på visningen.
Viktigt att veta:
Det finns ingen möjlighet att installera diskmaskin eller tvättmaskin i lägenheten.
Mer information om lägenheten:
Hall
Färg väggar: Vitmålade
Golv: Vinylgolv
Förvaringsmöjligheter: Garderober
Kök
Utrustning: Kyl/frys kombi, Spishäll och Spisfläkt
Färg på köksinredning: Ek
Färg väggar: Ljus grön/blå
Golv: Vinylgolv
Plats för matbord: Ja
Sovrum
Färg väggar: Vitmålade
Golv: Parkett
Förvaringsmöjligheter: Garderober
Vardagsrum
Färg väggar: Vitmålade
Golv: Parkett
Badrum
Utrustning: Wc, Badkar, Badrumsskåp, Tvättställ
Väggar: Kakel
Golv: Klinker
Övrigt
Säkerhetsdörr: Ja
Förråd: Ja
I hyran ingår: Kabel-TV och Värme
Denna lägenhet omfattas av underhållshyra, läs mer om hur detta fungerar och vad det innebär på vår hemsida https://www.mkbfastighet.se/kund/din-bostad/renovering-och-underhall/
Inflyttning
Det datum som presenteras i Ledig fr.o.m. är det datum som vi skriver kontrakt från. Det finns möjlighet för tidigare inflyttning från 1 Maj, detta kan diskuteras vid kontraktsskrivning.
OBS! Nya riktlinjer gällande internflytt inom MKB. Från 1/1–2024 är uppsägningstiden tre hela kalendermånader.
Om två personer söker en lägenhet tillsammans, måste både huvudsökande och medsökande var och en klara en (1,0) gång månadshyran efter skatt.