OBS! Stambyte planeras inom en femårsperiod.
Därför måste ett godkännande för de standardhöjande åtgärderna måste skrivas under i samband med signering av hyreskontraktet.
Månadshyran kommer sedan att höjas med cirka 200-800 kronor, beroende på lägenhetens storlek och hur omfattande standardhöjningen blir.
Vid stambyte renoveras badrummen och förses med nya vatten- och avloppsstammar, tätskikt, sanitetsporslin, kakel, klinker eller plastmatta, blandare med mera. Efter stambytet kommer kostnaden för varmvatten att mätas och debiteras individuellt, varmvatten kommer alltså ej längre ingå i hyran.
Hej och välkomna på visning!
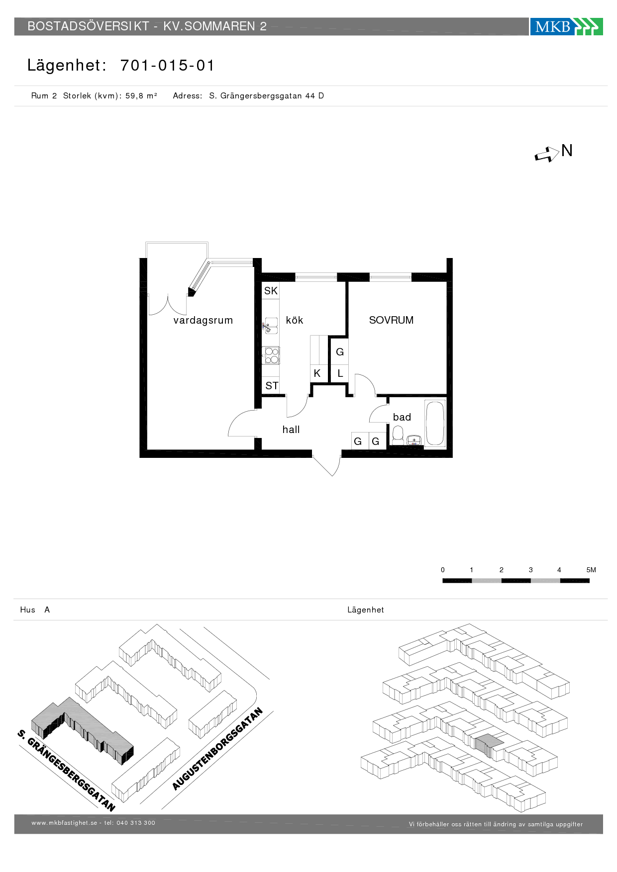
Nu finns en mysig 2:a med balkong ledig att söka i gröna Augustenborg.
Lägenheten är belägen på 2:e våningen i ett 4-våningshus utan hiss och har en praktisk planlösning och trivsam planlösning.
Följande åtgärder ska göras i lägenheten:
- Köksluckor och garderobsluckor i hall kommer att sprutlackeras i vitt
- Väggar i kök målas i vitt
- Nytt vinylgolv läggs i hall och kök
- Nytt parkettgolv läggs i sovrum och vardagsrum
- OBS! Notera även att badkaret på planritningen kommer bytas till en duschkabin
Preliminär tidsplan är färdigställande före inflyttning, men arbete kan förekomma efter inflyttning.
Viktigt att veta:
Det finns ingen möjlighet att installera diskmaskin eller tvättmaskin i lägenheten.
Mer information om lägenheten:
Hall
Färg väggar: Vita
Golv: Vinylplastmatta
Förvaringsmöjligheter: Garderob
Kök
Utrustning: Spis med keramikhäll, kyl/frys
Färg på köksinredning: Vit
Färg väggar: Vita
Golv: Vinylplastmatta
Plats för matbord: Ja
Vardagsrum
Färg väggar: Vita
Golv: Parkett
Sovrum 1
Färg väggar: Vita
Golv: Parkett
Förvaringsmöjligheter: Garderober
Badrum
Utrustning: Duschkabin
Väggar: Halvkaklat
Golv: Klinker
Övrigt
Säkerhetsdörr: Ja
Förråd: Ja
I hyran ingår: Kabel-TV, värme
Denna lägenhet omfattas av underhållshyra, läs mer om hur detta fungerar och vad det innebär på vår hemsida https://www.mkbfastighet.se/kund/din-bostad/renovering-och-underhall/
Inflyttning
Det datum som presenteras i Ledig fr.o.m. är det datum som vi skriver kontrakt från.
OBS! Nya riktlinjer gällande internflytt inom MKB. Från 1/1–2024 är uppsägningstiden tre hela kalendermånader.
Om två personer söker en lägenhet tillsammans, måste både huvudsökande och medsökande var och en klara en (1,0) gång månadshyran efter skatt.