Stor charmig tvårummare i centrala Malmö !
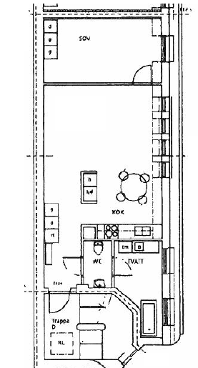
HALL
Golv: Klinker innanför entrén och sedan parkett
Väggar: Ljusgrå
BADRUM
Golv: Schackrutigt klinkergolv (svart och vitt)
Väggar: Vitt kakel.
Utrustning: Handfat, wc, dusch, tvättmaskin och torktumlare.
KÖK
Golv: Parkett
Väggar: Ljusgrå
Köksinredning: Vit
Utrustning: Kyl/frys, spis med häll och ugn, diskmaskin och spiskåpa
VARDAGSRUM
Golv: Parkett
Väggar: Vita
SOVRUM
Golv: Parkett
Väggar: Vita
Förvaring: Garderober
ÖVRIGT
- Cykelparkering på gården
- Miljöhus på gården
- Förråd i källare
- I huset tillämpas individuell uppmätning och debitering av varmvatten