10 mån hyresdebitering, juli och augusti är hyresfria.
Välkommen till Dalaplan!
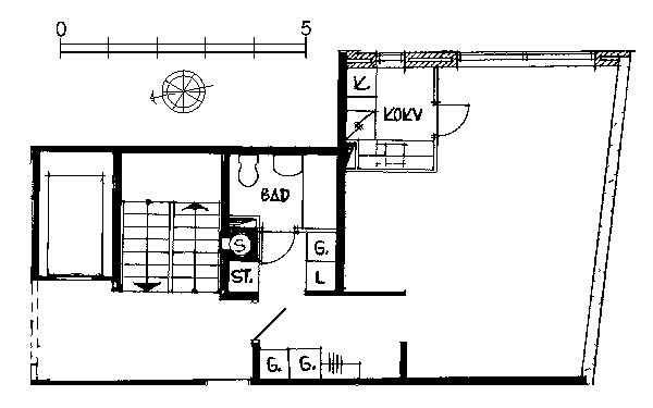
Nu är denna studentlägenhet ledig. En charmig och välplanerad 60-tals lägenhet med fint ljusinsläpp, vitmålade väggar, parkettgolv och helkaklat badrum. Till lägenheten tillhör ett vindsförråd. Se planlösningen för att kunna bedöma om lägenheten motsvarar dina önskemål.
Hiss finns från entrén upp till femte våningen. I huset erbjuds det många bra faciliteter såsom gemensamhetslokal med gratis wi-fi, bastu, byteshylla (Swop-shelf), säkert cykelrum samt en lugn inhägnad innergård.
På vår hemsida hittar du mer information och bilder på alla våra studenthus i Malmö https://www.mkbfastighet.se/kund/student/vara-studenthus/
OBS! tänk på att det är påsk och kan vara svårt att komma i kontakt med hyresgästen för att komma på visning. Du kan tacka ja eller nej även om du inte har sett den. Exempelbilder och planlösning för lägenheten finns i annonsen.