OBS: Möjlighet för tidigare tillträde vid önskemål
Hyran för lägenheten är enligt 2025 års hyresnivå. Årliga hyreshöjningen på 3,19% tillkommer på hyran från 2026-03-01.
Lägenheten kommer att målas om innan inflyttning lika befintlig kulör med färgkod S0500-N.
Utöver ovan underhåll så hyrs lägenheten ut i befintligt skick. Vi vill informera om att vissa ytskikt, såsom väggar med äldre lagningar, kan förekomma och bedöms som normalt slitage.
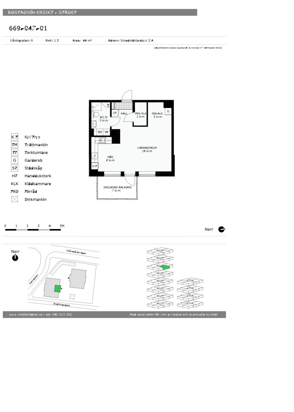
Entré/Hall
Innanför lägenhetsdörren ligger grå granitkeramik närmast kapphylla som övergår till mattlackad ekparkett. Vita målade väggar. Avhängning och förvaring framgår av lägenhetens planritning.
Badrum
Grå granitkeramik på golv och vitt kakel på vägg. Handfat, handdukstork, spegelskåp, wc och dusch med duschdörrar. Tvättmaskin och torktumlare, bänkskiva av grå laminat och vita överskåp.
Kök
Mattlackad ekparkett på golv och vita målade väggar.
VITVAROR: Spis/ugn med induktionshäll, spiskåpa, vit kyl/frys, diskmaskin och mikrovågsugn.
KÖKSINREDNING: Vita släta skåpluckor. Bänkskiva av grå laminat med nedsänkt diskho, grått kakel som stänkskydd.
Sovalk
Mattlackad ekparkett på golv och vita målade väggar. Förvaringslösning framgår av lägenhetens planritning.
Vardagsrum
Mattlackad ekparkett på golv och vita målade väggar.
Exteriör
Huset är i vit putsad betong med mörkgrå entréer och fönsterpartier. Balkongerna har fronter i glas. Taket är skiffergrått. Grön vegetation på miljöhusen.
Balkong
CYKEL CYKELFÖRVARING/CYKELPARKERING
På gård.
PARKERING/BILPLATSER/BILPOOL
Se lediga p-platser www.mkbfastighet.se/parkering
FÖRRÅD
I lägenhet. Se planritning.
INTERNET/TV/TELEFONI
MKB Net (Bredband) och Sappa (kabel-TV) och uttag i varje rum.
Bredband: www.mkbnet.se
Kabel-TV: www.sappa.se/
VARMVATTEN/KÄLLSORTERING
I vårt bostadshus gäller individuell mätning och debitering av varmvattenförbrukning
för att spara vatten och värmeenergi. Du betalar för din egen förbrukning. I anslutning till husen finns två stycken fristående miljöhus för källsortering där du kan sortera
allt utom farligt avfall, elektronikskrot, batterier och glödlampor.
SERVICE
Limhamn erbjuder allt av god samhällservice och ett stort utbud av både
kommunala och privata förskolor och skolor. Här finns flera små butiker, stora matvarukedjor och olika träningsanläggningar. Med cykel och buss tar du dig snabbt och enkelt till andra delar av staden.
UNDERHÅLLSHYRA
Denna lägenhet omfattas av underhållshyra, läs mer om hur detta fungerar och vad det innebär på vår hemsida https://www.mkbfastighet.se/kund/din-bostad/renovering-och-underhall/66
Om två personer söker en lägenhet tillsammans, måste både huvudsökande och medsökande var och en klara en (1,0) gång månadshyran efter skatt.