Observera att denna lägenhet visas digitalt, det blir ingen fysisk visning.
Hyran för lägenheten är enligt 2026 års hyresnivå.
Lägenheten hyrs ut i befintligt skick. Vi vill informera om att vissa ytskikt, såsom väggar med äldre lagningar, kan förekomma och bedöms som normalt slitage.
BESKRIVNING AV LÄGENHET
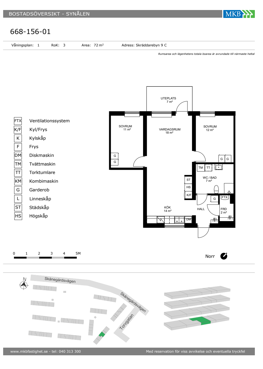
Hall
Golv: 3-stavs ekparkett
Vägg: Vitmålad
Förvaring: Ja, platsbyggd garderob samt förråd
Vardagsrum
Golv: 3-stavs ekparkett
Vägg: Vitmålad
Kök
Golv: 3-stavs ekparkett
Vägg: Vitmålad
Inredning: Vit kakel ovanför diskbänk, vit köksinredning, blågrå laminatbänkskiva.
Vitvaror: Inbyggnadsugn, spis med induktionshäll, diskmaskin, kyl/frys, fläkt
Sovrummen
Golv: 3-stavs ekparkett
Vägg: Vitmålad
Förvaring: Garderob
Badrum
Golv: Grå klinker
Vägg: Vitt blankt kakel
Dusch med glasväggar och vit kommod under handfatet. Tvättmaskin & torktumlare.
Uteplats
Finns i nordväst läge.
ÖVRIG BESKRIVNING OM LÄGENHETEN
INGÅR I HYRAN
Värme
Kallvatten
INTERNET/TV/TELEFONI
MKB Net (Bredband) och Sappa (kabel-TV). Uttag i varje rum.
Läs mer här om internet: https://www.mkbnet.se/
Läs mer här om Sappa: http://www.sappa.se/mkb/
KOSTNADER UTÖVER HYRAN
Varmvatten: Individuell mätning och debitering av varmvattenförbrukning. Du betalar för din egen förbrukning och den kommer att synas på din hyresavi.
El
MKB tecknar grön el med gemensamt elavtal för alla hyresgäster. Den fasta kostnaden ingår i din hyra, den rörliga kostnaden kommer att debiteras efter förbrukning och synas på hyresavin.
Internet
Fiber från MKB Net finns i din lägenhet. Du har många olika leverantörer och hastigheter att välja bland. Läs mer här, www.mkbnet.se
CYKELFÖRVARING/CYKELPARKERING
Finns på gården.
PARKERING/BILPOOL
Parkeringsplatser utomhus, se lediga p-platser på www.mkbfastighet.se/parkering.
Medlemskap i bilpool ingår till 2029.
FÖRRÅD
I lägenheten. Se planritning.
UNDERHÅLLSHYRA
Denna lägenhet omfattas av underhållshyra, läs mer om hur detta fungerar och vad det innebär på vår hemsida https://www.mkbfastighet.se/kund/din-bostad/renovering-och-underhall/
Om två personer söker en lägenhet tillsammans, måste både huvudsökande och medsökande var och en klara en (1,0) gång månadshyran efter skatt.