Observera att denna lägenhet visas digitalt, det blir ingen fysisk visning.
Hyran för lägenheten är enligt 2026 års hyresnivå.
Lägenheten hyrs ut i befintligt skick. Vi vill informera om att vissa ytskikt, såsom väggar med äldre lagningar, kan förekomma och bedöms som normalt slitage.
BESKRIVNING AV LÄGENHET
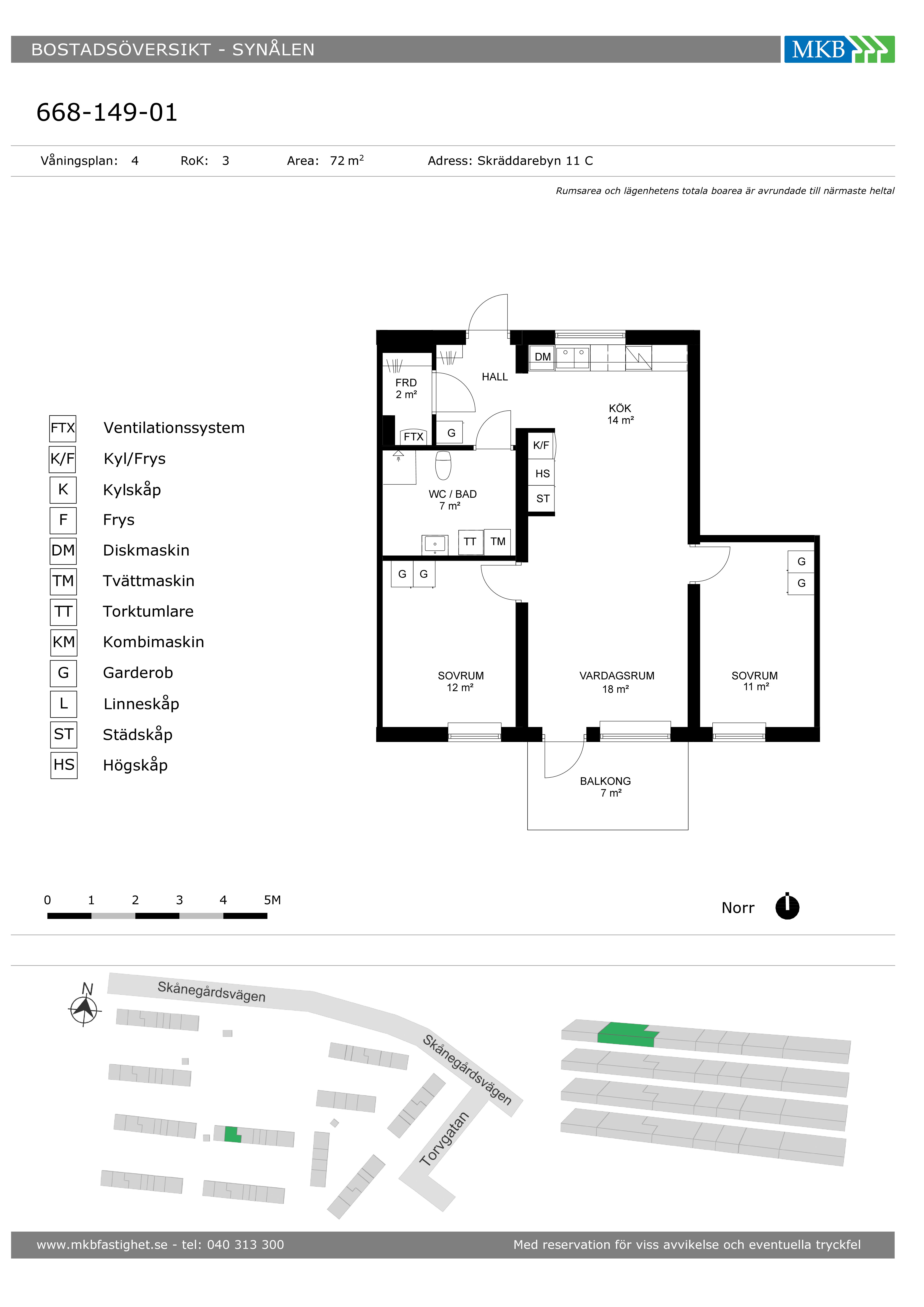
Hall
Golv: 3-stavs ekparkett
Vägg: Vitmålad
Förvaring: Ja, platsbyggd garderob samt förråd
Vardagsrum
Golv: 3-stavs ekparkett
Vägg: Vitmålad
Sovrummen
Golv: 3-stavs ekparkett
Vägg: Vitmålad
Kök
Golv: 3-stavs ekparkett
Vägg: Vitmålad
Inredning: Vit kakel ovanför diskbänk, vit köksinredning, blågrå laminatbänkskiva.
Vitvaror: Inbyggnadsugn, spis med induktionshäll, diskmaskin, kyl/frys, fläkt
Badrum
Golv: Grå klinker
Vägg: Vitt blankt kakel
Dusch med glasväggar och vit kommod under handfatet. Tvättmaskin och torktumlare.
Balkong i söderläge
Ja, tillträde via vardagsrummet.
ÖVRIG BESKRIVNING OM LÄGENHETEN
INGÅR I HYRAN
Värme
Kallvatten
INTERNET/TV/TELEFONI
MKB Net (Bredband) och Sappa (kabel-TV). Uttag i varje rum.
Läs mer här om internet: https://www.mkbnet.se/
Läs mer här om Sappa: http://www.sappa.se/mkb/
KOSTNADER UTÖVER HYRAN
Varmvatten: Individuell mätning och debitering av varmvattenförbrukning. Du betalar för din egen förbrukning och den kommer att synas på din hyresavi.
El: MKB tecknar grön el med gemensamt elavtal för alla hyresgäster. Den fasta kostnaden ingår i din hyra, den rörliga kostnaden kommer att debiteras efter förbrukning och synas på hyresavin.
Internet: Fiber från MKB Net finns i din lägenhet. Du har många olika leverantörer och hastigheter att välja bland. Läs mer här, www.mkbnet.se
CYKELFÖRVARING/CYKELPARKERING
Finns på gården.
PARKERING/BILPOOL
Parkeringsplatser utomhus, se lediga p-platser på www.mkbfastighet.se/parkering.
Medlemskap i bilpool ingår till 2029
FÖRRÅD
I lägenheten. Se planritning.
UNDERHÅLLSHYRA
Denna lägenhet omfattas av underhållshyra, läs mer om hur detta fungerar och vad det innebär på vår hemsida https://www.mkbfastighet.se/kund/din-bostad/renovering-och-underhall/
MKBs UTHYRNINGSPOLICY
https://www.mkbfastighet.se/vill-hyra/lediga-lagenheter/uthyrningspolicy/
Om två personer söker en lägenhet tillsammans, måste både huvudsökande och medsökande var och en klara en (1,0) gång månadshyran efter skatt.