Lägenheten hyrs ut i befintligt skick, det vill säga så som ni ser lägenheten på visningstillfället. Diskmaskin går inte att installera i lägenheten.
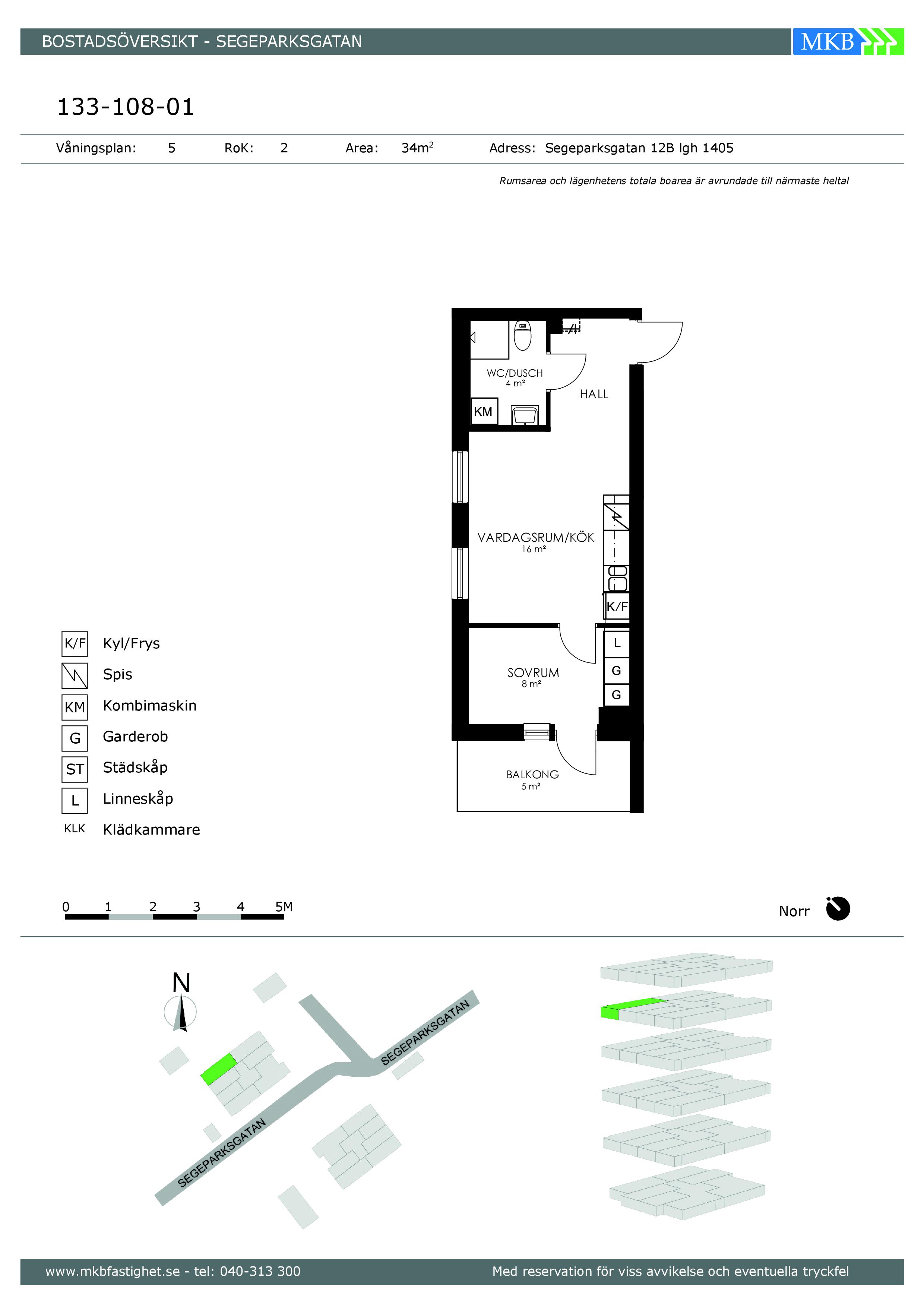
Lägenheten
Hall
Färg väggar: vitt
Golv: laminat
Förvaringsmöjligheter: nej
Kök/kokvrå
Utrustning: spis med keramikhäll, spiskåpa, kyl/frys
Färg på köksinredning: vit
Färg väggar: vit
Golv: laminat
Plats för matbord: nej
Vardagsrum
Färg väggar: vit
Golv: laminat
Sovrum
Färg väggar: vit
Golv: laminat
Förvaringsutrymmen: garderober
Badrum
Utrustning: tvättställ. WC, duschvägg, handdukstork, kombi tvättmaskin
Väggar: vit
Golv: grå
Övrigt
Säkerhetsdörr: Ja
Förråd: i separat byggnad
I hyran ingår: Kabel-TV, värme
Denna lägenhet omfattas av underhållshyra, läs mer om hur detta fungerar och vad det innebär på vår hemsida https://www.mkbfastighet.se/kund/din-bostad/renovering-och-underhall/
Inflyttning
Det datum som presenteras i Ledig fr.o.m. är det datum som vi skriver kontrakt från.