Välkomna att söka denna 2:a!
Nu har du chansen att söka en fin och fräsch 2:a med balkong i gröna Augustenborg!
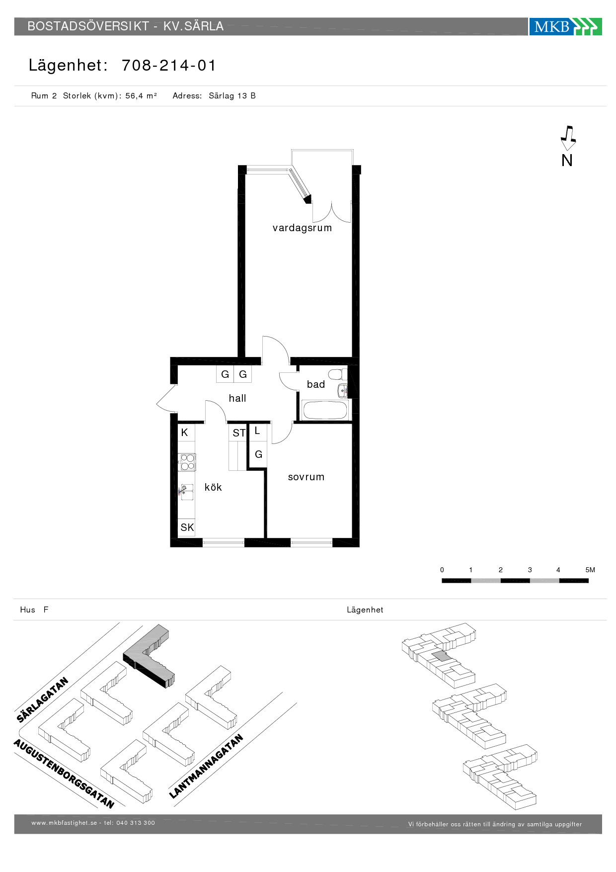
Lägenheten är belägen högst upp på våning 3 i ett 3-våningshus utan hiss och har en praktisk och trivsam planlösning.
Badrummet är nyrenoverat efter nyligen genomfört stambyte i fastigheten.
Lägenheten målades och fick nya golv år 2023.
Fastigheten kommer även genomgå ett fönster byte, detta planeras ske före inflyttnings datumet. Ändras tidsplanen kommer ni få informationen vid kontraktsskrivningen.
Inga ytterligare åtgärder är planerade och lägenheten hyrs ut i befintligt skick, därför är det extra viktigt att komma på visningen.
Viktigt att veta:
Det finns ingen möjlighet att installera diskmaskin eller tvättmaskin i lägenheten.
Mer information om lägenheten:
Hall
Färg väggar: Vita
Golv: Vinylgolv
Förvaringsmöjligheter: Garderob
Kök
Utrustning: Spis med keramikhäll, kyl/frys, fläkt
Färg på köksinredning: Vita
Färg väggar: Vita
Golv: Vinylgolv
Plats för matbord: Ja
Vardagsrum
Färg väggar: Vita
Golv: Parkett
Sovrum
Färg väggar: Vita
Golv: Parkett
Badrum
Utrustning: Tvättställ, badrumsskåp, dusch
Väggar: Kakel
Golv: Klinker
Övrigt
Säkerhetsdörr: Ja
Förråd: Ja, i källare
Internet: MKB Net
Parkering: Finns att hyra i separat kö
Tvätt: Ja, i källare
Denna lägenhet omfattas av underhållshyra, läs mer om hur detta fungerar och vad det innebär på vår hemsida https://www.mkbfastighet.se/kund/din-bostad/renovering-och-underhall/
Inflyttning
Det datum som presenteras i Ledig fr.o.m. är det datum som vi skriver kontrakt från. Finns även möjlighet för tidigare inflyttning från 1/06, detta kan diskuteras vid kontraktsskrivning.
OBS! Nya riktlinjer gällande internflytt inom MKB. Från 1/1–2024 är uppsägningstiden tre hela kalendermånader.
Om två personer söker en lägenhet tillsammans, måste både huvudsökande och medsökande var och en klara en (1,0) gång månadshyran efter skatt.