10 mån hyresdebitering, juli och augusti är hyresfria.
Välkommen till Boken!
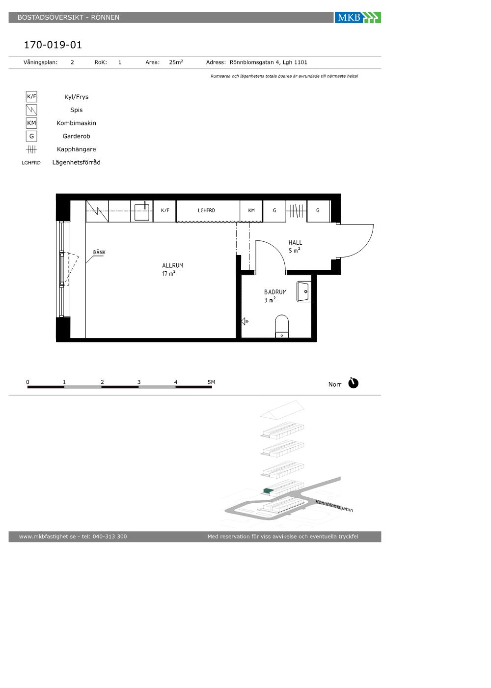
Nu är denna studentlägenhet ledig. En ytsmart etta med öppen planlösning och moderna materialval. Alla lägenheter har egen tvättutrustning med kombinerad tvättmaskin/torktumlare. Från marklägenheterna är det en utgång direkt till inhägnad uteplats. Se planlösningen för att kunna bedöma om lägenheten motsvarar dina önskemål.
Huset stod klart 2021 och ligger i vårt populära studentkvarter Rönnen. Här är det 94 moderna och välutrustade lägenheter. Hiss finns från entréplan. Du har tillgång till flertalet faciliteter i vårt studenthus Rönnen som ligger i samma område. Här har du tillgång till studierum med wifi, övernattningslägenhet, bytesrum, cykelverkstad och lådcykelpool. På Rönnen ligger även vårt områdeskontor med reception.
På vår hemsida hittar du mer information och bilder på alla våra studenthus i Malmö https://www.mkbfastighet.se/kund/student/vara-studenthus/