Revingehedsgatan 58

Revingehedsgatan 58

Johanneslust

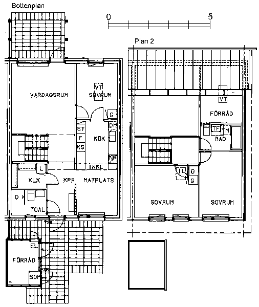
Lägenhet

108 kvm

Antal rum 4 rum och kök

Våning 1 av 2

Hyra per månad 14484 kr/mån

Ledig fr.o.m 2026-05-01

Gör en intresseanmälan på Boplats Syd