Lägenheten kommer att målas om innan inflyttningsdatum.
Alla golv kommer att bytas förutom i vardagsrummet där golvet kommer att slipas. Golven i sovrum 1, 2 och 3 kommer att uppgraderas till parkett.
Köksluckor, garderobsluckor och innerdörrar kommer att sprutlackeras.
Spis och diskmaskin kommer att bytas ut.
Trappan kommer att renoveras – den kommer att lackeras och mattan i trappan kommer att bytas ut.
Badrum 1 på nedre våningen kommer att renoveras och utrustas med duschkabin, tvättmaskin och torktumlare.
Badrum 2 på ovanvåningen kommer också att renoveras.
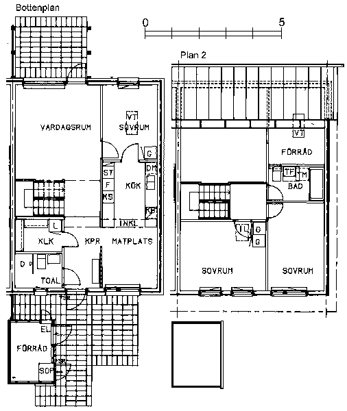
Ett uterum kommer att byggas mot trädgården i anslutning till vardagsrummet. Vi inväntar startbesked från Stadsbyggnadskontoret för att kunna påbörja byggnationen. Om startbesked inte erhålls innan inflyttningsdatum då kommer arbetet utföras efter inflyttning.
Hyran kommer att höjas med en månadskostnad för uterummet from månaden efter att uterummet är färdigställt.
Hyran för lägenheten avser 2026 års hyresnivå.
Från och med år 2024 tillämpar MKB Fastighets AB en uppsägningstid om 3 månader för interna kunder istället för 2 månader. Detta innebär när en MKB kund flyttar internt så har de uppsägningstid 3 hela kalendermånader.
Om två personer söker en lägenhet tillsammans, måste både huvudsökande och medsökande var och en klara en (1,0) gång månadshyran efter skatt.
LÄGENHETEN
Hall
Färg väggar: vitt
Golv: vinylmatta
Förvaringsmöjligheter: klädkammare
Kök
Utrustning: keramikhäll, spiskåpa, diskmaskin, separata kyl och frys
Färg på köksinredning: vitt
Färg väggar: vitt
Golv: vinylmatta
Plats för matbord: ja
Vardagsrum
Färg väggar: vitt
Golv: parkett
Sovrum 1
Färg väggar: vitt
Golv: parkett
Förvaringsmöjligheter: nej
Sovrum 2
Färg väggar: vitt
Golv: parkett
Förvaringsmöjligheter: nej
Sovrum 3
Färg väggar: vitt
Golv: parkett
Förvaringsmöjligheter: garderober
Badrum
Utrustning: tvättställ, WC, badkar
Väggar: kakel
Golv: klinker
Gäst wc
Väggar: väggmatta
Golv: golvmatta
Utrustning: tvättställ, WC, duschkabin, tvättmaskin och torktumlare
Övrigt
Säkerhetsdörr: ja
Förråd: ja
I hyran ingår: Kabel-TV, värme
Varmvatten: I denna fastighet tillämpar vi individuell mätning och debitering av varmvattenförbrukning.
Denna lägenhet omfattas av underhållshyra, läs mer om hur detta fungerar och vad det innebär på vår hemsida https://www.mkbfastighet.se/kund/din-bostad/renovering-och-underhall/
Inflyttning
Det datum som presenteras i Ledig fr.o.m. är det datum som vi skriver kontrakt från.