Lägenheten kommer att målas om innan inflyttning. I övrigt hyrs lägenheten ut i befintligt skick.
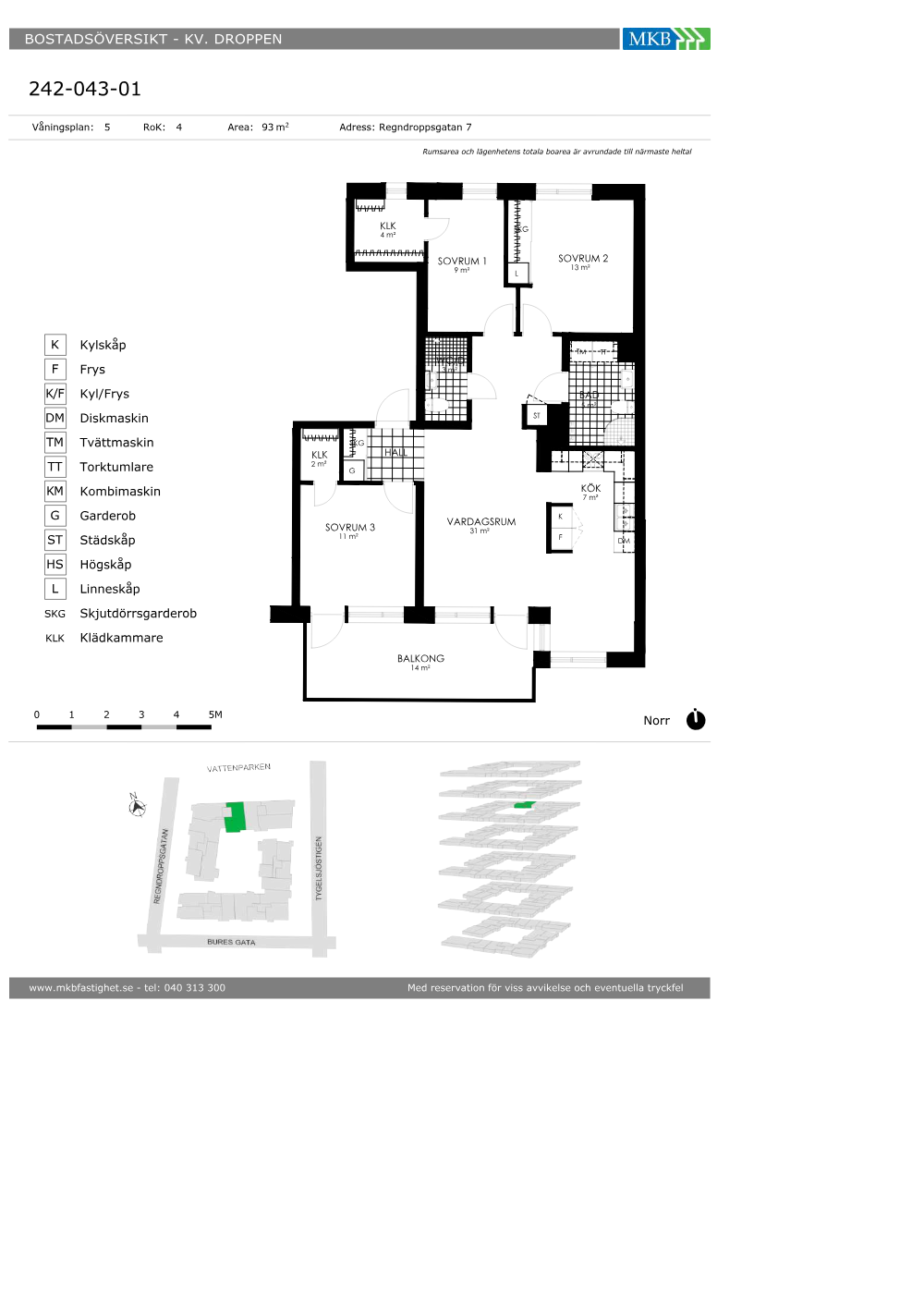
Hall
Golv: Sandbeige klinker vid entrén. Övrig yta ekparkett.
Vägg: Vit målad
Övrigt: Hatthylla
Badrum
Golv: Brun klinker
Vägg: Matt vitt kakel
Duschväggar i glas, handdukstork, tvättmaskin och torktumlare.
Extra badrum
Golv: Brun klinker
Vägg: Matt vitt kakel
Duschstång
Kök
Vägg: Vit målad
Golv: Ekparkett
Övrigt: Vit köksinredning med blankt vitt kakel ovan diskbänk, mörkgrå bänkskiva, diskmaskin
Vardagsrum och sovrum
Vägg: Vitmålad
Golv: Ekparkett
Övrigt
CYKELFÖRVARING/CYKELPARKERING
Finns i källaren och på gården.
PARKERING
Finns garageplats att hyra via Aimo Park.
FÖRRÅD
I källare eller vind.
INTERNET/TV/TELEFONI
MKB Net (Bredband) och Sappa (kabel-TV)
VARMVATTEN/KÄLLSORTERING
I vårt bostadshus gäller individuell mätning och debitering av varmvattenförbrukning
för att spara vatten och värmeenergi. Du betalar för din egen förbrukning. I fastigheten
finns miljörum för källsortering där du kan sortera allt utom farligt avfall, elektronikskrot, batterier och glödlampor.
BALKONG/UTEPLATS
Balkong. Se planritning
Om två personer söker en lägenhet tillsammans, måste både huvudsökande och medsökande var och en klara en (1,0) gång månadshyran efter skatt.