Varmt Välkommen till Nydala!
Nu finns det en härlig trerumslägenhet ledig!
Möjlighet till diskmaskin: Nej
OBS! Tvättmaskin går inte att installera
------------------------
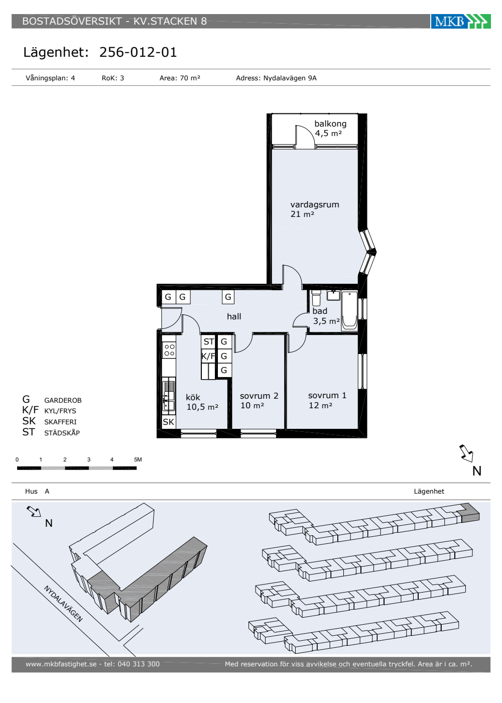
Hall
Färg väggar: Vita väggar
Golv: Ljusgrå plastmatta
Förvaringsmöjligheter: Vita luckor
Kök
Utrustning: Spis med keramikhäll, kyl/frys kombi, kolfilterfläkt
Färg på köksinredning: Vita luckor
Färg väggar: Vita väggar
Golv: Ljusgrå plastmatta
Plats för matbord: Ja
Rum
Färg väggar: Vita väggar
Golv: Parkett
Rum
Färg väggar: Vita väggar
Golv: Parkett
Vardagsrum
Färg väggar: Vita väggar
Golv: Parkett
Badrum
Utrustning:Badkar
Väggar: Helkaklat vitt
Golv: Grå klinker
Övrigt 1
Säkerhetsdörr: Ja
Förråd: Källare
I hyran ingår: Kabel-TV, värme
Övrigt
-Hyran avser 2026 års hyresnivå
Inflyttning Det datum som presenteras i Ledig 2026-07-01är det datum som vi skriver kontrakt från.
-Om två personer söker en lägenhet tillsammans, måste både huvudsökande och medsökande var och en klara en (1,0) gånger månadshyran efter skatt.
-Är du boendekund hos MKB idag? Tänk då på att du har tre månaders uppsägningstid om du ska flytta till en annan MKB-lägenhet.
Denna lägenhet omfattas av underhållshyra, läs mer om hur detta fungerar och vad det innebär på vår hemsida. https://www.mkbfastighet.se/kund/din-bostad/renovering-och-underhall/