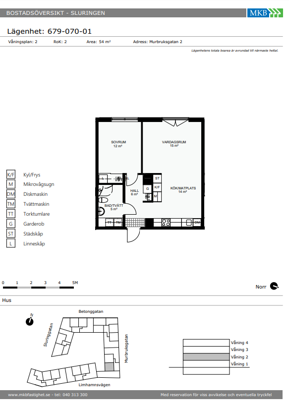
Entré/Hall
Innanför lägenhetsdörren ligger grått klinker på golv som sedan övergår i ekparkett. Vitmålade väggar. Förvaringslösning framgår av planritningen. Hatthylla finns i alla lägenheter.
Badrum
Mattsvart klinker på golv och vitt kakel på vägg. Handfat, handdukstork, wc och dusch med duschdörrar. Tvättmaskin och torktumlare, bänkskiva i laminat och överskåp.
Kök/vardagsrum
Ekparkett på golv och vitmålade väggar. VITVAROR: Spis/ugn med induktionshäll, spiskåpa, vit kyl och frys, diskmaskin och förberett för mikrovågsugn. KÖKSINREDNING: Marbodal Aspekt Vit (vita släta skåpluckor). Marbodal handtag (Tråd rostfri). Bänkskiva och stänkskydd av grå laminat med nedsänkt diskho.
Sovrum: Ekparkett och vitmålade väggar. Förvaringslösning framgår av planritningen.
Övrigt:
CYKELFÖRVARING/CYKELPARKERING Finns både på gården och i källaren.
PARKERING/ 47 platser i garage samt 46 garageplatser i nya Multihuset.
FÖRRÅD Finns i källaren
INTERNET/TV/TELEFONI MKB Net (Bredband) och Kabel-TV och uttag i varje rum.
KÄLLSORTERING
På innergården finns två stycken fristående miljöhus för källsortering där du kan sortera allt utom farligt avfall, elektronikskrot, batterier och glödlampor.
GEMENSAMMA UTRYMMEN
Utöver tvättmöjlighet i lägenheten finns en gemensam tvättstuga med två tvättmaskiner och två torktumlare.
Detta ingår i hyran
Värme
Kallvatten
Basutbud med TV kanaler
Kostnader utöver hyran
El: Du betalar både den fasta avgiften och för din egen förbrukning.
Varmvatten: Individuell mätning och debitering av varmvattenförbrukning för att spara vatten och värmeenergi. Du betalar för din egen förbrukning och den kommer att synas på din hyresavi.
Internet: Fiber från MKB Net finns i din lägenhet. Du har många olika leverantörer och hastigheter att välja bland.
Den presenterade hyran är enligt 2026 års hyresnivå.
Om två personer söker en lägenhet tillsammans, måste både huvudsökande och medsökande var och en klara en (1,0) gång månadshyran efter skatt.