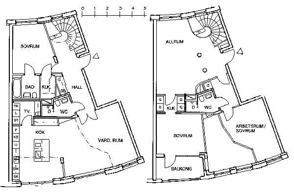
Välkommen till denna fantastiska två planslägenhet om 165 kvm med både uteplats och balkong.
Lägenheterna på Potatisåkern är moderna, välplanerade och gediget byggda i vackra material med stort genomgående massivt trägolv. Bra materialval är något som kännetecknar dem. Bastu, övernattningslägenhet och gemensamhetslokal är några av bekvämligheterna som hyresgästerna får ta del av. Många av lägenheterna har utsikt över Öresundsbron, andra mot villaområden.
Renovering utförs innan ny hyresgäst tillträder.
Sprutlackering av innerdörrar
Sprutlackering av gardrobsluckor i hela lägenheten
Sprutlackering av köksluckor
Slipning & lackering av Juncker parkettgolv i hela lägenheten
Målning in- och utvändigt köksstomme.
Ny kyl & frys
Övrigt hyrs lägenheten ut i befintligt skick, vilket innebär att visst slitage kan förekomma.
Hall
Färg väggar: Vit
Golv: Parkett
Kök (uteplats i anslutning)
Utrustning: Induktionshäll, fläkt, diskmaskin, hel kyl & hel frys ugn och mikrovågsugn
Färg på köksinredning: Vita luckor
Färg väggar: Vit
Golv: Parkett
Vardagsrum 1 (uteplats i anslutning)
Färg väggar: Vit
Golv: Parkett
Vardagsrum 2
Färg väggar: Vit
Golv: Parkett
Sovrum 1 ( plan 1)
Färg väggar: Vit
Golv: Parkett
Klädkammare
Färg väggar: Vit
Golv: plastmatta
Sovrum 2 (plan 2)
Färg väggar: Vit
Golv: Parkett
Sovrum 3 (plan 2)
Färg väggar: Vit
Golv: Parkett
Badrum (i anslutning till sovrum 1)
Utrustning: Badkar, Tvättställ, handdukstork och WC stol
Väggar: Kakel
Golv: Klinkers
Duschrum 1
Utrustning: Dusch, Tvättställ, handdukstork och WC stol
Väggar: Helkakel
Golv: Plastmatta
Duschrum 2 (plan 2)
Utrustning: Dusch, Tvättställ, handdukstork och WC stol
Väggar: Helkakel
Golv: Klinker
Grovkök
Utrustning: Tvättmaskin, Torktumlare, städförvaring, diskbänk med köksblandare.
Väggar: Vit
Golv: Klinker
Övrigt
Säkerhetsdörr: Ja
Förråd: Ja
I hyran ingår: Kabel-TV, värme och vatten
Uteplats: finns
Balkong: Finns med S läge i anslutning till sovrum 3
Övriga kostnader
El: Avtal är tecknat med vår elleverantör. Du betalar både den fasta avgiften och din egen förbrukning. Du kan byta leverantör när du vill. Internet: Fiber från MKB Net finns i din lägenhet. Du väljer själv vilken internetleverantör du vill ha via MKB Net och tecknar eget avtal.
Detta ingår i hyran Värme, Kallvatten, Varmvatten, TV-tjänsten Sappa med 20 digitala TV-kanaler. Du får också tillgång till playtjänsten Sappa Play.
Denna lägenhet omfattas av underhållshyra, läs mer om hur detta fungerar och vad det innebär på vår hemsida. https://www.mkbfastighet.se/kund/din-bostad/renovering-och-underhall/
OBS: Den presenterade hyran avser år 2026.
Inflyttning Det datum som presenteras i Ledig fr.o.m. är det datum som vi skriver kontrakt från.
Avvikelser från planritning kan förekomma
Visst slitage kan innebära fläckar på väggar, mindre repor i golv eller mindre märken på vitvaror.
Om två personer söker en lägenhet tillsammans, måste både huvudsökande och medsökande var och en klara en (1,0) gång månadshyran efter skatt.