Lägenhets beskrivning
Välkommen till en ljus och välplanerad enkelsidig lägenhet om 66,5 kvm med balkong belägen på 12 våningen.
--------------------
Renovering utförs innan ny hyresgäst tillträder.
Målning hela lägenheten.
Sprutlackering av köksluckor.
Sprutlackering av garderobsluckor i hall
Sprutlackering av garderobsluckor i sovrummen.
Ny kolfilterfläkt
Smaldiskmaskin installeras
Nytt vinylgolv i hall med nya vita fotlister
Nytt vinylgolv i kök med nya vita fotlister
Ny parkettgolv i sovrummen med nya vita fotlister
Parkettgolv i vardagsrum skall slipas och nya vita fotlister skall monteras.
Observera att bilden på kök och vardagsrum inte visar det färdiga resultatet – renovering kommer ske innan inflytt.
Övrigt hyrs lägenheten ut i befintligt skick, vilket innebär att visst slitage kan förekomma.
-------------------
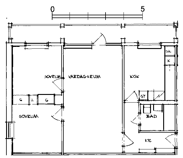
HALL
Väggar: Vita
Golv: Vinyl i träimitation
Förvaringsmöjligheter: Garderober
KÖK
Väggar: Vita
Golv: Vinyl i träimitation
Färg på köksluckor: Vit
Stänkskydd: Vitt kakel
Utrustning: Diskmaskin, kyl/frys, spis, fläkt
Plats för matbord: Ja
SOVRUM
Väggar: Vita
Golv: Parkett
Utrustning: Mindre garderob
SOVRUM 2
Väggar: Vita
Golv: Parkett
Utrustning: Mindre garderob
VARDAGSRUM
Väggar: Vita
Golv: Parkett
BADRUM
Väggar: Kakel
Golv: Klinker
Utrustning: Badkar, tvättställ, wc, badrumsskåp
Det finns inte möjlighet att installera tvättpelare
Övriga kostnader
El: Avtal är tecknat med vår elleverantör. Du betalar både den fasta avgiften och din egen förbrukning. Du kan byta leverantör när du vill. Varmvatten: Individuell mätning och debitering av varmvattenförbrukning för att spara vatten och värmeenergi. Du betalar för din förbrukning och den kommer att synas på din hyresavi. Internet: Fiber från MKB Net finns i din lägenhet. Du väljer själv vilken internetleverantör du vill ha via MKB Net och tecknar eget avtal.
Detta ingår i hyran Värme, Kallvatten, TV-tjänsten Sappa med 20 digitala TV-kanaler. Du får också tillgång till playtjänsten Sappa Play.
Denna lägenhet omfattas av underhållshyra, läs mer om hur detta fungerar och vad det innebär på vår hemsida. https://www.mkbfastighet.se/kund/din-bostad/renovering-och-underhall/
OBS: Den presenterade hyran avser år 2026.
Inflyttning Det datum som presenteras i Ledig fr.o.m. är det datum som vi skriver kontrakt från.
Avvikelser från planritning kan förekomma
Visst slitage kan innebära fläckar på väggar, mindre repor i golv eller mindre märken på vitvaror.
Om två personer söker en lägenhet tillsammans, måste både huvudsökande och medsökande var och en klara en (1,0) gång månadshyran efter skatt.