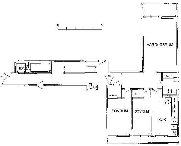
Välkommen till en ljus och välplanerad genomgående lägenhet om 77,7 kvm med balkong belägen på sjunde våningen.
-----------------------
Hyrs ut i befintligt skick, vilket innebär att visst slitage kan förekomma.
-------------------
HALL
Väggar: Vita
Golv: Vinyl i träimitation
KÖK
Färg på köksinredning: Vit
Väggar: Vita
Golv: Vinyl i träimitation
Stänkskydd: Vitt kakel
Plats för matbord: Ja
Utrustning: Kyl/Frys, spis/ugn, kolfilterfläkt, diskmaskin
SOVRUM 1
Väggar: Vita
Golv: Parkett
SOVRUM 2
Väggar: Vita
Golv: Parkett
VARDAGSRUM
Väggar: Vita
Golv: Parkett
BADRUM
Väggar: Helkaklat vitt
Golv: Klinker
Utrustning: Dusch, tvättställ, wc, badrumsskåp
Det finns inte möjlighet att installera tvättpelare
ÖVRIGT
Säkerhetsdörr: Ja
Förråd: Finns
I hyran ingår: Kabel-TV och värme
Varmvatten: Individuell mätning
El: Ingår ej
Övriga kostnader
El: Avtal är tecknat med vår elleverantör. Du betalar både den fasta avgiften och din egen förbrukning. Du kan byta leverantör när du vill. Varmvatten: Individuell mätning och debitering av varmvattenförbrukning för att spara vatten och värmeenergi. Du betalar för din förbrukning och den kommer att synas på din hyresavi. Internet: Fiber från MKB Net finns i din lägenhet. Du väljer själv vilken internetleverantör du vill ha via MKB Net och tecknar eget avtal.
Detta ingår i hyran Värme, Kallvatten, TV-tjänsten Sappa med 20 digitala TV-kanaler. Du får också tillgång till playtjänsten Sappa Play.
Denna lägenhet omfattas av underhållshyra, läs mer om hur detta fungerar och vad det innebär på vår hemsida. https://www.mkbfastighet.se/kund/din-bostad/renovering-och-underhall/
OBS: Den presenterade hyran avser år 2026.
Inflyttning Det datum som presenteras i Ledig fr.o.m. är det datum som vi skriver kontrakt från.
Avvikelser från planritning kan förekomma
Visst slitage kan innebära fläckar på väggar, mindre repor i golv eller mindre märken på vitvaror.
Om två personer söker en lägenhet tillsammans, måste både huvudsökande och medsökande var och en klara en (1,0) gång månadshyran efter skatt.