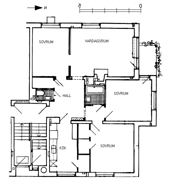
Välkommen till en ljus och välplanerad genomgående lägenhet om 92,8 kvm med två balkong i väst och öst belägen på fjärde våningen.
--------------------
Renovering utförs innan ny hyresgäst tillträder.
-Hela lägenheten ska målas i vitt och väv ska sättas på väggarna.
- Kök: Köksluckorna och stommarna ska sprutlackeras, ny kyl/frys kombi 175 cm samt ny kolfilterfläkt.
- Hall: Ny plastmatta i intensive oak caramel.
- Golv: Sovrum 1: Nytt parkettgolv ska installeras. Vardagsrum: Nytt parkettgolv ska installeras. Sovrum 3: Parkettgolv ska installeras.
- Övrigt: Ny hatthylla ska installeras. Nya innerdörrar i hela lägenheten. Spegel ska installeras i WC.
-------------------
Hall:
Färg väggar: Ljusa
Golv: Plastmatta
Förvaring: Garderober
Kök:
Utrustning: Spis med keramikhäll, fläkt och kyl/frys
Färg på köksinredning: Vit
Färg väggar: Ljusa
Golv: Parkett
Vardagsrum
Färg väggar: Ljusa
Golv: Parkettgolv
Sovrum 1,2,3
Färg väggar: Ljusa
Golv: Parkett på sovrum 1 & 2. Plastmatta i sovrum 3.
WC
Utrustning: Wcstol, tvättställ
Väggar: Halvkaklat
Golv: Klinker
Badrum
Utrustning: Dusch, Wcstol, tvättställ
Väggar: Kakel
Golv: Klinker
Övrigt:
Säkerhetsdörr: Ja
Förråd: Vind
Balkong: 2 st
Väderstreck: Balkong 1: V. Balkong 2: Ö
Denna lägenhet omfattas av underhållshyra, läs mer om hur detta fungerar och vad det innebär på vår hemsida. https://www.mkbfastighet.se/kund/din-bostad/renovering-och-underhall/
Om två personer söker en lägenhet tillsammans, måste både huvudsökande och medsökande var och en klara en (1,0) gång månadshyran efter skatt.