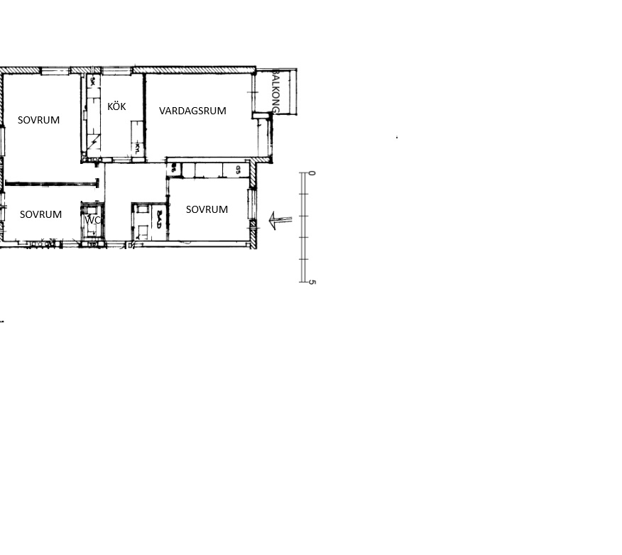
Välkommen till en ljus och välplanerad genomgående lägenhet om 86,5 kvm med balkong belägen i söder på tredje våningen.
--------------------
Renovering utförs innan ny hyresgäst tillträder.
Parkettgolvet i vardagsrummet kommer att slipas.
Innerdörrarna kommer att sprutlackeras, likaså garderobsluckorna i sovrum 3
-------------------
Hall:
Färg väggar: Vita
Golv: Plastmatta
Kök:
Utrustning: Spis med keramikhäll, fläkt och kyl/fry, diskmaskin
Färg på köksinredning: trä
Färg väggar: Vit
Golv: vinylgolv
Vardagsrum
Färg väggar: Ljusa
Golv: Parkett
sovrum 1
Färg väggar: Ljusa
Golv: Parkett
sovrum 2
Färg väggar: Ljusa
Golv: Parkett
Övrigt: Garderoberna ingår ej.
sovrum 3
Färg väggar: Ljusa
Golv: Parkett
Badrum
Utrustning: badkar, Wcstol, tvättställ
Väggar: Kakel
Golv: Klinker
Övrigt:
Säkerhetsdörr: Ja
Förråd: Källare & vind
Balkong: Finns
Väderstreck: S
Denna lägenhet omfattas av underhållshyra, läs mer om hur detta fungerar och vad det innebär på vår hemsida https://www.mkbfastighet.se/hyresgast/att-bo-hos-mkb/i-lagenheten
Om två personer söker en lägenhet tillsammans, måste både huvudsökande och medsökande var och en klara en (1,0) gång månadshyran efter skatt.
OBS, det kommer ske ett kommande tappvatten byte där vi installerar individuell mätning av varmvatten