Hyran för lägenheten är enligt 2026 års hyresnivå.
Lägenheten hyrs ut i befintligt skick. Vi vill informera om att vissa ytskikt, såsom väggar med äldre lagningar, kan förekomma och bedöms som normalt slitage.
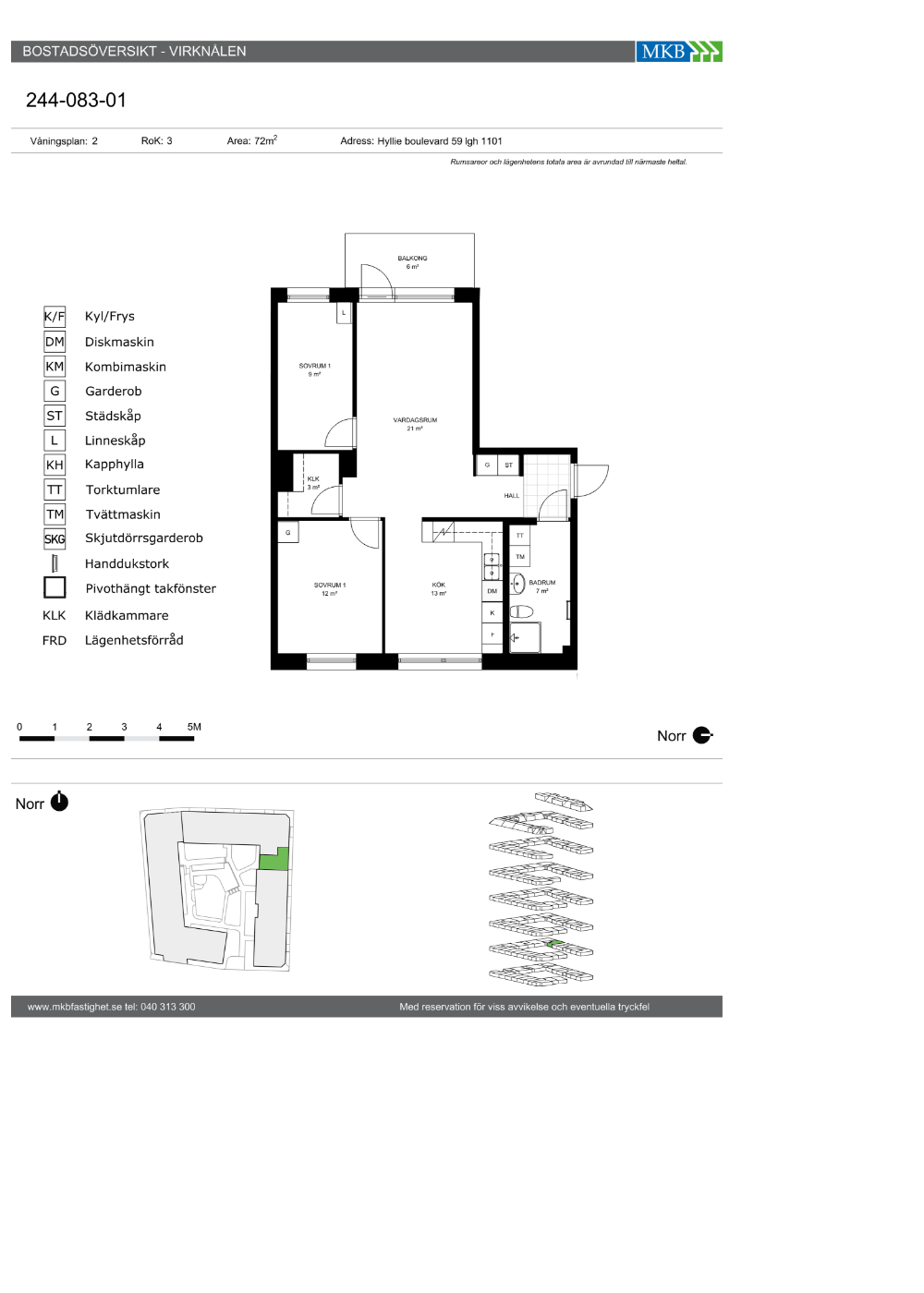
Hall
Vägg: Ljusmålad
Golv: Vitbetsad ek och sandfärgad/ljusgrå klinker vid entré.
Vardagsrum
Vägg: Ljusmålad
Golv: Vitbetsad ekparkett
Kök
Vägg: Ljusmålad
Golv: Vitbetsad ek
Vit köksinredning.
Diskmaskin
Mörkgrå bänkskiva virr varr.
Förberett för microvågsugn
Fristående spis med induktionshäll.
Badrum
Vägg: Vitkaklad
Golv: Brun klinker
Dusch med raka duschväggar i glas.
Tvättmaskin och torktumlare
Bänkskiva över tvättmaskin och torktumlare i ljusgrå virr varr.
CYKELFÖRVARING/CYKELPARKERING
Finns cykelrum i huset och avsedda platser på gården.
PARKERING/BILPOOL
Medlemskap i bilpool ingår till 2029.
FÖRRÅD
Finns på vinden.
INTERNET/TV/TELEFONI
MKB Net (Bredband) och Sappa (kabel-TV)
EL
MKB tecknar avtal om förnybar el för alla hyresgäster. Din elanvändning debiteras och syns på hyresavin. Abonnemangskostnad för el ingår i hyran.
VARMVATTEN/KÄLLSORTERING
I vårt bostadshus gäller individuell mätning och debitering av varmvattenförbrukning
för att spara vatten och värmeenergi. Du betalar för din egen förbrukning. I fastigheten
finns miljörum för källsortering där du kan sortera allt utom farligt avfall, elektronikskrot, batterier och glödlampor.
BALKONG i västerläge
UNDERHÅLLSHYRA
Denna lägenhet omfattas av underhållshyra, läs mer om hur detta fungerar och vad det innebär på vår hemsida https://www.mkbfastighet.se/kund/din-bostad/renovering-och-underhall/
Om två personer söker en lägenhet tillsammans, måste både huvudsökande och medsökande var och en klara en (1,0) gång månadshyran efter skatt.