Lägenheten hyrs ut i befintligt skick. Vi vill informera om att vissa ytskikt, såsom väggar med äldre lagningar, kan förekomma och bedöms som normalt slitage.
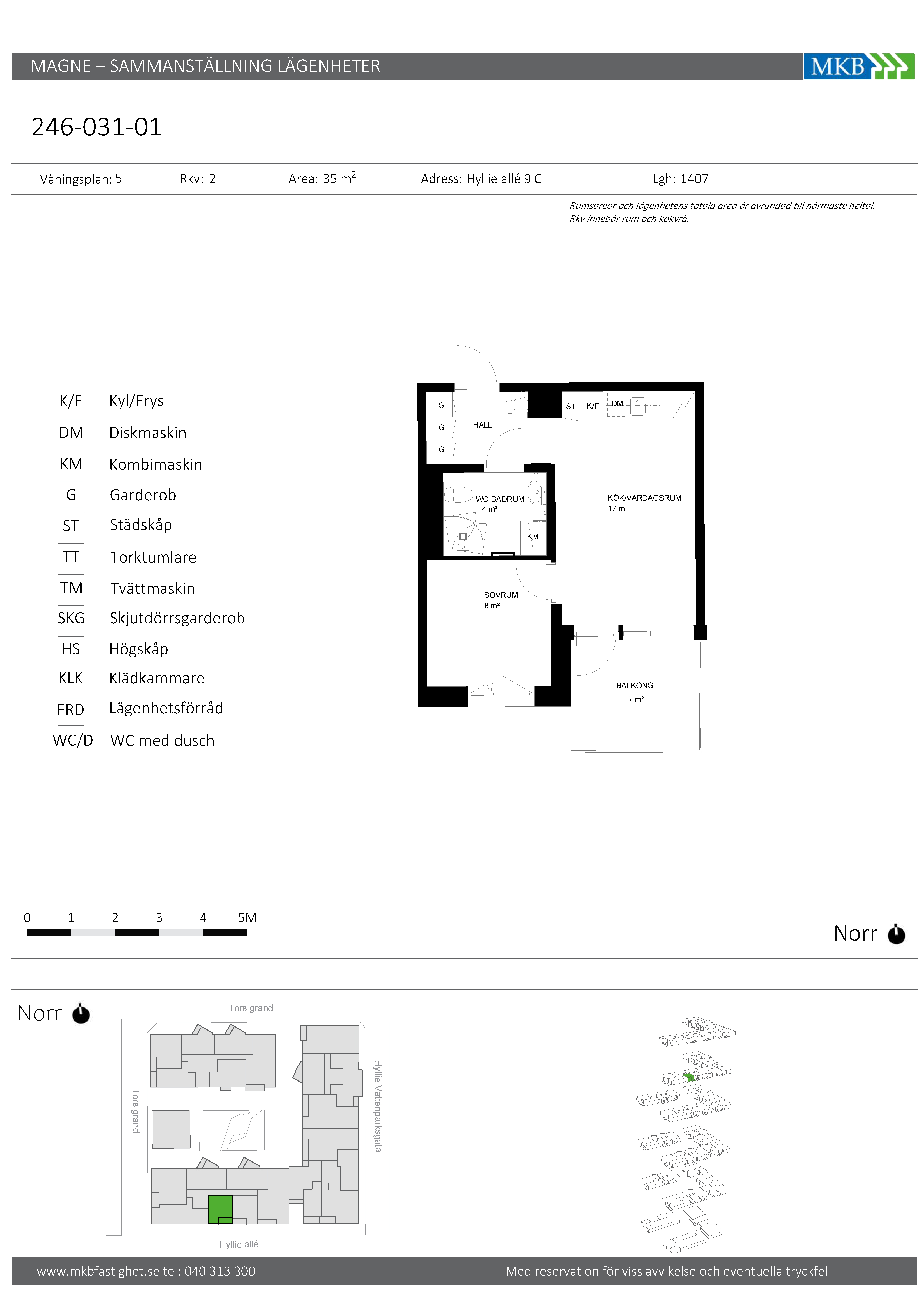
Hall
Vägg: Målad i neutral vit NCS S 0500-N
Golv: Ekparkett
Övrigt: Hatthylla i ek och aluminium. Garderob.
Vardagsrum
Vägg: Målad i neutral vit NCS S O500-N
Golv: Ekparkett
Kök
Golv: Ekparkett
Vägg: Målad i neutral vit NCS 0500-N
Vitt kakel ovanför en mörkgrå diskbänk av laminat.
Vit köksinredning
Diskmaskin
Sovrum
Vägg: Målad i neutral vit NCS S 0500-N
Golv: Ekparkett
Badrum
Vägg: Helkaklad vit.
Golv: Mörkgrå klinker antracit grå.
Övrigt: Kombinerad maskin. Mörkgrå bänkskiva av laminat.
Bra att veta
-Förråd finns på våning 1 eller vinden.
-Persienner
-Bilpool 10 år gratis medlemskap från att huset byggdes.
-Grillplats på gården.
-Solceller på taket.
-Lokal att hyra
Detta ingår i hyran
-Värme
-Kallvatten
-Basutbud TV med 21 kanaler
-Fast avgift för el
Kostnader utöver hyran
El: MKB tecknar ett gemensamt avtal om förnybar el för alla hyresgäster. Din egen elförbrukning debiteras och syns på hyresavin.
Varmvatten: Individuell mätning och debitering av varmvattenförbrukning för att spara vatten och värmeenergi. Du betalar för din egen förbrukning och den kommer att synas på din hyresavi.
Internet: Fiber från MKB Net finns i din lägenhet. Du har många olika leverantörer och hastigheter att välja bland.
Om två personer söker en lägenhet tillsammans, måste både huvudsökande och medsökande var och en klara en (1,0) gång månadshyran efter skatt.