OBS! INGEN VISNING.
Du behöver ta ställning till om du är intresserad baserat på planritningen i annonsen.
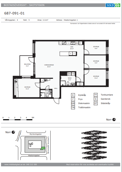
Hall
Färg väggar: Ljusa
Golv: Klinker/parkett
Förvaringslösning framgår av planritningen
Kök/vardagsrum
Utrustning: Hel kyl och frys, spishäll (induktion), spiskåpa, ugn, diskmaskin
Färg på köksinredning: Vit
Färg väggar: Ljusa
Golv: Parkett
Plats för matbord: Ja
Sovrum
Färg väggar: Ljusa
Golv: Parkett
Förvaringslösning framgår av planritningen
Badrum
Utrustning: Tvättmaskin, torktumlare, dusch
Väggar: Vit kakel
Golv: Mörk klinker
Wc
Utrustning: Tvättställ, wc och dusch
Väggar: Vit kakel
Golv: Mörk klinker
Övrigt
Säkerhetsdörr: Ja
Förråd: I källare
Detta ingår i hyran:
Värme
Kallvatten
Basutbud med TV kanaler
Kostnader utöver hyran:
El: Du betalar både den fasta avgiften och för din egen förbrukning. Du kan byta leverantör när du så önskar.
Varmvatten: Individuell mätning och debitering av varmvattenförbrukning för att spara vatten och värmeenergi. Du betalar för din egen förbrukning och den kommer att synas på din hyresavi.
Internet: Fiber från MKB Net finns i din lägenhet. Du har många olika leverantörer och hastigheter att välja bland.
Om två personer söker en lägenhet tillsammans, måste både huvudsökande och medsökande var och en klara en (1,0) gång månadshyran efter skatt.
Den presenterade hyran är enligt 2026 års hyresnivå.