Välkommen till en ljus och välplanerad genomgående senior lägenhet om77,7 kvm med balkong belägen på åttonde våningen.
-----------------------
Övrigt hyrs lägenheten ut i befintligt skick, vilket innebär att visst slitage kan förekomma.
OBS! Bilder är delvis AI generad.
Uthyrning sker efter ritning/beskrivning.
-------------------
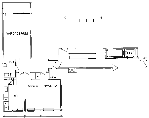
HALL
Väggar: Vita
Golv: Laminat
Förvaringsmöjligheter: Klädkammare
KÖK
Väggar: Vita
Golv: Vinylgolv
Färg på köksluckor: Vit
Stänkskydd: Vitt kakel
Utrustning: Diskmaskin, kyl/frys, spis, fläkt
Plats för matbord: Ja
SOVRUM 1
Väggar: Vita
Golv: Parkett
SOVRUM 2
Väggar: Vita
Golv: Plastmatta
Förvaringsmöjligheter: Garderober
VARDAGSRUM
Väggar: Vita
Golv: Parkett
BADRUM
Väggar: Kakel
Golv: Klinker
Det finns inte möjlighet att installera tvättpelare
ÖVRIGT
Säkerhetsdörr: Ja
Förråd: Finns
I hyran ingår: Kabel-TV och värme
Varmvatten: Individuell mätning
El: Ingår ej
Övriga kostnader
El: Avtal är tecknat med vår elleverantör. Du betalar både den fasta avgiften och din egen förbrukning. Du kan byta leverantör när du vill. Varmvatten: Individuell mätning och debitering av varmvattenförbrukning för att spara vatten och värmeenergi. Du betalar för din förbrukning och den kommer att synas på din hyresavi. Internet: Fiber från MKB Net finns i din lägenhet. Du väljer själv vilken internetleverantör du vill ha via MKB Net och tecknar eget avtal.
Detta ingår i hyran Värme, Kallvatten, TV-tjänsten Sappa med 20 digitala TV-kanaler. Du får också tillgång till playtjänsten Sappa Play.
Denna lägenhet omfattas av underhållshyra, läs mer om hur detta fungerar och vad det innebär på vår hemsida. https://www.mkbfastighet.se/kund/din-bostad/renovering-och-underhall/
OBS: Den presenterade hyran avser år 2026.
Inflyttning Det datum som presenteras i Ledig fr.o.m. är det datum som vi skriver kontrakt från.
Avvikelser från planritning kan förekomma
Visst slitage kan innebära fläckar på väggar, mindre repor i golv eller mindre märken på vitvaror.
Om två personer söker en lägenhet tillsammans, måste både huvudsökande och medsökande var och en klara en (1,0) gång månadshyran efter skatt.
Seniorboende hos MKB är avsett för dig som är 55 år eller äldre och det är ett krav att den som står på kontraktet har fyllt 55 år. Det inte tillåtet med hemmaboende barn.