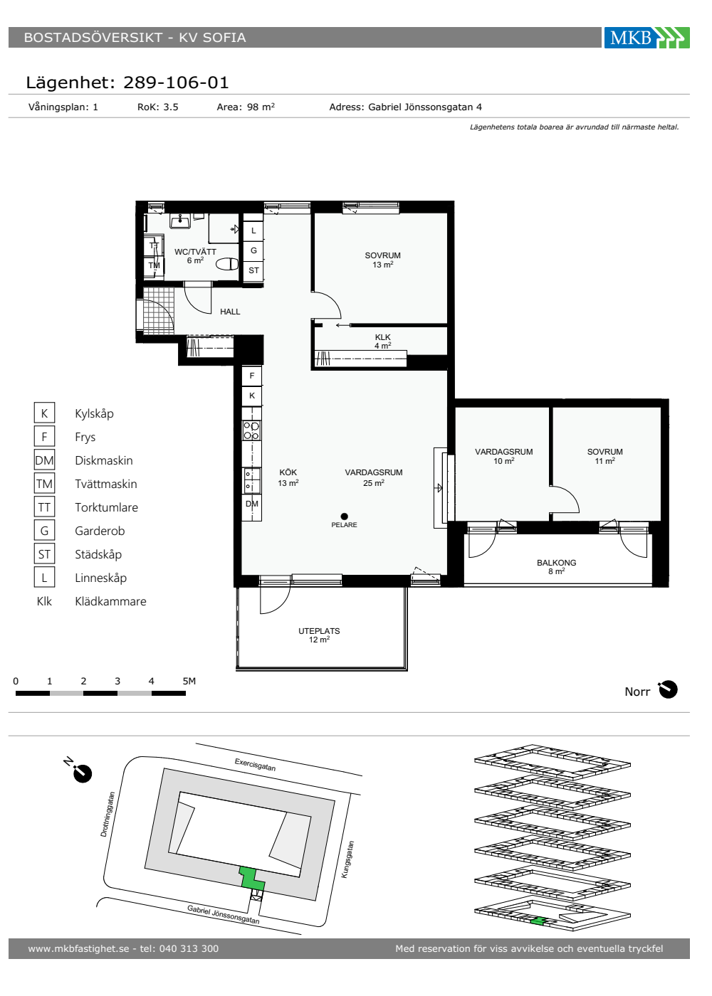
Välkommen till en fantastisk lägenhet på ett fantastiskt läge! Här erbjuds fräsch trea med spännande planlösning - mitt i centrum. Alla bekvämligheter som kan önskas och två balkonger. Välkommen på visning.
Hall
Golv: Klinker och parkett
Väggar: Vitmålade
Förvaring: Garderober såsom linneskåp, garderob och städskåp
Säkerhetsdörr: Ja
Badrum
Golv: Klinker
Väggar: Kakel
Utrustning: Dusch med glasdörrar, handfat, WC-stol, handdukstork, tvättmaskin och torktumlare
Kök
Vitt kök med kaklat stänkskydd.
Utrustning: Ugn och spis med glashäll, spiskåpa, diskmaskin och kyl och frys.
Golv: Parkett
Väggar: Vitmålade
Utgång till uteplats mot Gabriel Jönssonsgatan
Vardagsrum
Golv: Parkett
Väggar: Vitmålade
Öppen planlösning med kök och två trappsteg upp vidare till vardagsrum 2 (se planlösning)
Sovrum 1
Golv: Parkett
Väggar: Vitmålade
Förvaring: Klädkammare
Sovrum 2
Golv: Parkett
Väggar: Vitmålade
Utgång till balkong belägen ovanför garageport