Trivsamt boende!
Nu kan vi presentera en lägenhet med tre rum och kök i denna populära fastighet.
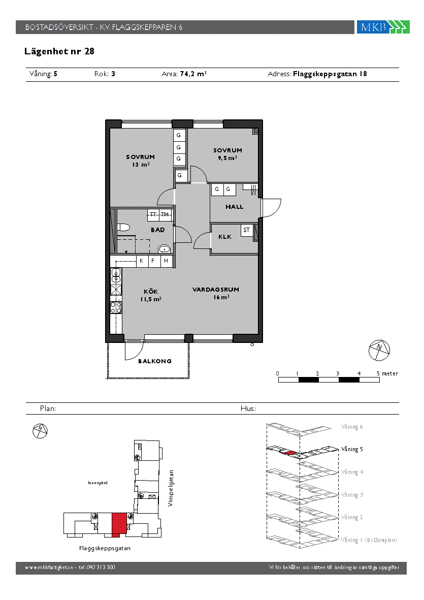
Stor möblerbar balkong i söderläge, utsikt mot parkmiljö. Lägenheten håller god standard så som ekparkett i vardagsrum och sovrum. Väggarna är vitmålade. Köksinredning i ek. Badrum har dusch och är helkaklat, vit kakel och grå klinker. Tvättmaskin och torktumlare finns i badrum. Öppen planlösning mellan kök och vardagsrum samt utgång till balkong. I sovrum finns garderober och i hall en stor klädkammare.
I området har vi en gästlägenhet man kan hyra 500:-/natten.
Lägenheten kommer att renoveras
Köksinredning (skador åtgärdas) sprutmålas i en ljus kulör.
Samtliga rum kommer att målas, tak och väggar samt snickerier.
Parkettgolv kommer att slipas, i köksdelen kommer vi att lägga en klinker som motsvarar den som ligger i hall.
Ny kyl och frys.
Detta kommer att utföras innan ny kund flyttar in.
Kök
Utrustning i vitt: hel kyl, hel frys, diskmaskin, spiskåpa och spis med keramikhäll
Färg på köksinredning: sprutmålas i ljus kulör
Färg väggar: Vitt
Golv: Klinker
Plats för matbord: Ja, öppen planlösning
Hall
Färg väggar: Vitt
Golv: svart klinker innan för entrén, parkett
Vardagsrum
Färg väggar: Vitt
Golv: Parkett
Sovrum 1 och 2
Färg väggar: Vitt
Golv: Parkett
Förvaringsmöjligheter: Ja, garderober
Badrum
Färg väggar: Vitt kakel
Golv: Grå klinkers
Utrustning: Dusch, handdukstork, tvättmaskin och torktumlare
Övrigt:
Säkerhetsdörr: ja
Förråd: ja
Garage finns i fastigheten
För information om bredband och kabel TV, www.mkbfastighet.se