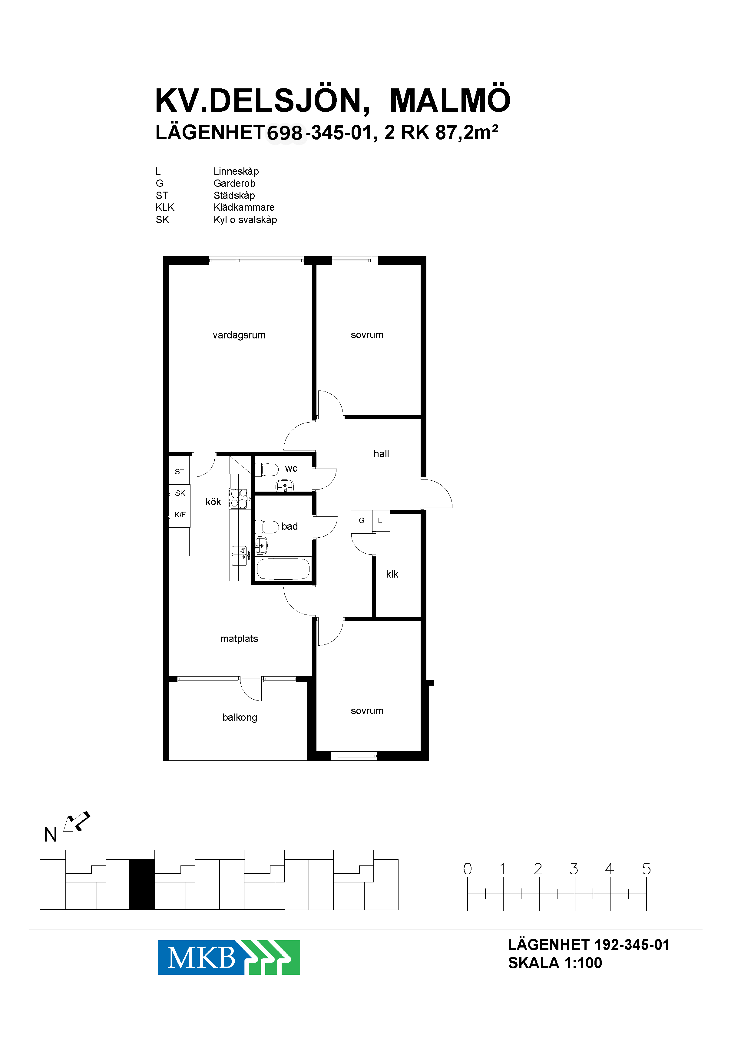
Välkommen till en ljus och välplanerad genomgående lägenhet om 87 kvm med inglasad balkong belägen på fjärde våningen.
--------------------
Renovering utförs innan ny hyresgäst tillträder.
- Samtliga rum målas
- Golv bytas i hall, sovrum ett & två, vardagsrum samt klädkammare
- Byte av kyl och frys samt diskmaskin
- Byte av badrumsskåp
Övrigt hyrs lägenheten ut i befintligt skick, vilket innebär att visst slitage kan förekomma.
-------------------
HALL
Väggar: Vita
Golv: Vinyl i träimitation
Förvaringsmöjligheter: Klädkammare
KÖK
Väggar: Vita
Golv: Vinyl i ljus träimitation
Färg på köksinredning: Vit
Stänkskydd: Vitt kakel
Utrustning: Diskmaskin, kyl och frys, spis, fläkt
Plats för matbord: Ja
SOVRUM
Väggar: Vita
Golv: Parkett
Förvaringsmöjligheter: Nej
VARDAGSRUM
Väggar: Vita
Golv: Parkett
BADRUM
Väggar: Vitmålad våtrumsmatta
Golv: Plastmatta
Utrustning: Dusch, vask, WC, badrumsskåp
Det är möjligt att installera tvättpelare inom 6 månader efter inflyttning.
WC
Väggar: Vita
Golv: Våtrumsmatta
Utrustning: wc, vask, spegel
ÖVRIGT
Säkerhetsdörr: Ja
Förråd: Finns
I hyran ingår: Kabel-TV och värme
Varmvatten: Individuell mätning
El: Ingår ej
Denna lägenhet omfattas av underhållshyra, läs mer om hur detta fungerar och vad det innebär på vår hemsida. https://www.mkbfastighet.se/kund/din-bostad/renovering-och-underhall/
Lägenheten är publicerad med 2026 års hyra.
Hyreshöjning sker årligen efter förhandlingar mellan MKB och Hyresgästföreningen.
Om två personer söker en lägenhet tillsammans, måste både huvudsökande och medsökande var och en ha möjlighet att betala en månadshyra efter skatt.
Inflyttning Det datum som presenteras i Ledig fr.o.m. är det datum som vi skriver kontrakt från.
Avvikelser från planritning kan förekomma
Vill ni veta mer om Bellevuegården? https://www.mkbfastighet.se/vill-hyra/bostadsomraden/vaster/bellevuegarden