10 mån hyresdebitering, juli och augusti är hyresfria.
Välkommen till Sommarstaden!
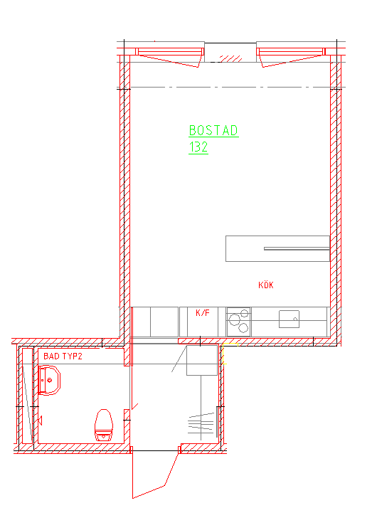
Nu är denna studentlägenhet ledig. En trevlig etta med öppen planlösning, stort fönsterparti, generös takhöjd, helkaklat badrum samt välplanerad köksavdelning. Se planlösningen för att kunna bedöma om lägenheten motsvarar dina önskemål.
Sommarstaden består av 145 studentlägenheter. Tvättstuga finns på varje våningsplan och hiss från markplan. I huset erbjuds det många bra faciliteter såsom studierum med wifi, moderna tvättstugor, cykelverkstad, gym, biljardrum, sällskapsrum, pingisrum, bytesrum, övningsrum för musikstudenter och odlingsrum/snickarrum. Områdeskontor finns i fastigheten på entréplan som är bemannat två tillfällen i veckan.
På vår hemsida hittar du mer information och bilder på alla våra studenthus i Malmö https://www.mkbfastighet.se/kund/student/vara-studenthus/