Välkommen på visning till denna trevliga lägenhet på Bokgatan 52.
Innan inflytt kommer alla rum förutom badrummet att målas om.
Köksluckorna kommer att sprutlackeras
Byte av spis
Tvättpelare kommer att installeras
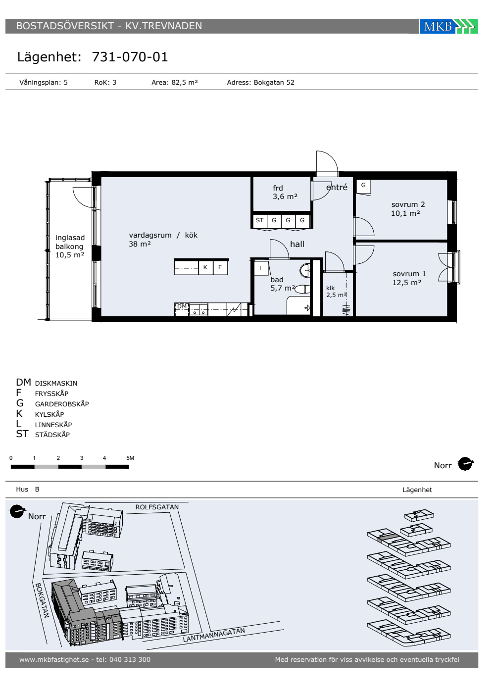
Lägenheten
Hall
Färg väggar: Vit
Golv: Parkett
Kök
Utrustning: Spis, Kyl/frys, Köksfläkt
Färg på köksinredning: Vit
Färg väggar: Vit
Golv: Parkett
Vardagsrum
Färg väggar: Vit
Golv: Parkett
Sovrum 1
Färg väggar: Vit
Golv: Parkett
Sovrum 2
Färg väggar: Vit
Golv: Parkett
Badrum
Utrustning: Dusch, Tvättpelare
Väggar: Kakel
Golv: Klinker
Övrigt
Säkerhetsdörr: Ja
Digitalt tvättbokningssystem: Ja
Parkeringsmöjligheter: Det finns inga garage eller parkeringsplatser i anslutning till fastigheten.
Hyran för lägenheten avser 2026 års hyresnivå.
Denna lägenhet omfattas av underhållshyra, läs mer om hur detta fungerar och vad det innebär på vår hemsida https://www.mkbfastighet.se/kund/din-bostad/renovering-och-underhall/
Inflyttning
Det datum som presenteras i Ledig fr.o.m. är det datum som vi skriver kontrakt från.
OBS! Nya riktlinjer gällande internflytt inom MKB. Från 1/1–2024 är uppsägningstiden tre hela kalendermånader vid internflytt inom MKB.