Den som blir godkänd för lägenheten och signerar kontraktet kommer att erhålla en rabatterad hyra med 10% under de första fem åren. Efter denna period återgår hyran till ordinarie nivå, vilket i dag är 11443 kr per månad, plus årliga hyreshöjningar. Den rabatterade hyran under de fem första åren kommer att vara 10406 kr per månad, exklusive de årliga hyreshöjningarna.
En stor treumslägenhet finns att söka nu!
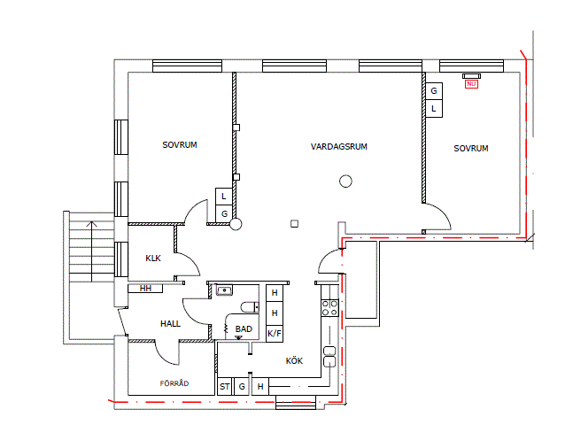
Lägenheten är belägen på källarvåningen i ett fyravåningshus och har en bra planlösning.
Lägenheten kommer att målas, även köksluckorna målas i vit och vissa av takplattorna i lägenheten kommer att bytas.
För mer information om lägenheten läs nedan beskrivning samt är ni välkomna på en fysisk visning.
Info om Lägenheten
Lägenheten ligger på källarplan och har en egen ingång via byggnadens gavel/sida. Alla golv i lägenheten är belagda med klinker och taket består av takplattor.
Hall
Färg väggar: Vit
Golv: Klinker
Förvaringsmöjligheter: Ja, Klädkammare
Kök
Utrustning: Spis med keramikhäll, Kyl/frys kombi, Kolfilterfläkt, diskmaskin
Färg på köksinredning: Vit
Färg väggar: Vit
Golv: Klinker
Plats för matbord: Nej
Vardagsrum
Färg väggar: Vit
Golv: Klinker
Sovrum 1
Färg väggar: Vit
Golv: Klinker
Sovrum 2
Färg väggar: Vit
Golv: Klinker
Badrum
Utrustning: Duschzon, Handfat, Wc-stol, Badrumsskåp med spegel
Väggar: Helkaklad
Golv: Klinker
Klädkammare
Färg på väggar: Vit
Golv: Klinker
Övrigt
Säkerhetsdörr: Ja
Förråd: Ja
I hyran ingår: Kabel-TV, värme
OBS! Hyran avser 2026 med hyreshöjningen som startar den 1/3-2026.
Denna lägenhet omfattas av underhålls hyra 2026, läs mer om hur detta fungerar och vad det innebär på vår hemsida https://www.mkbfastighet.se/kund/din-bostad/renovering-och-underhall/