Varmt Välkommen till Lindängen!
Renovering:
Efter inflyttning kommer vår leverantör att boka tid för att slipa ner spackelfläckar i kök, vardagsrum och det lilla sovrummet. Även dörrfoder i badrummet ska målas.
OBS! Tvättmaskin går inte att installera
------------------------------
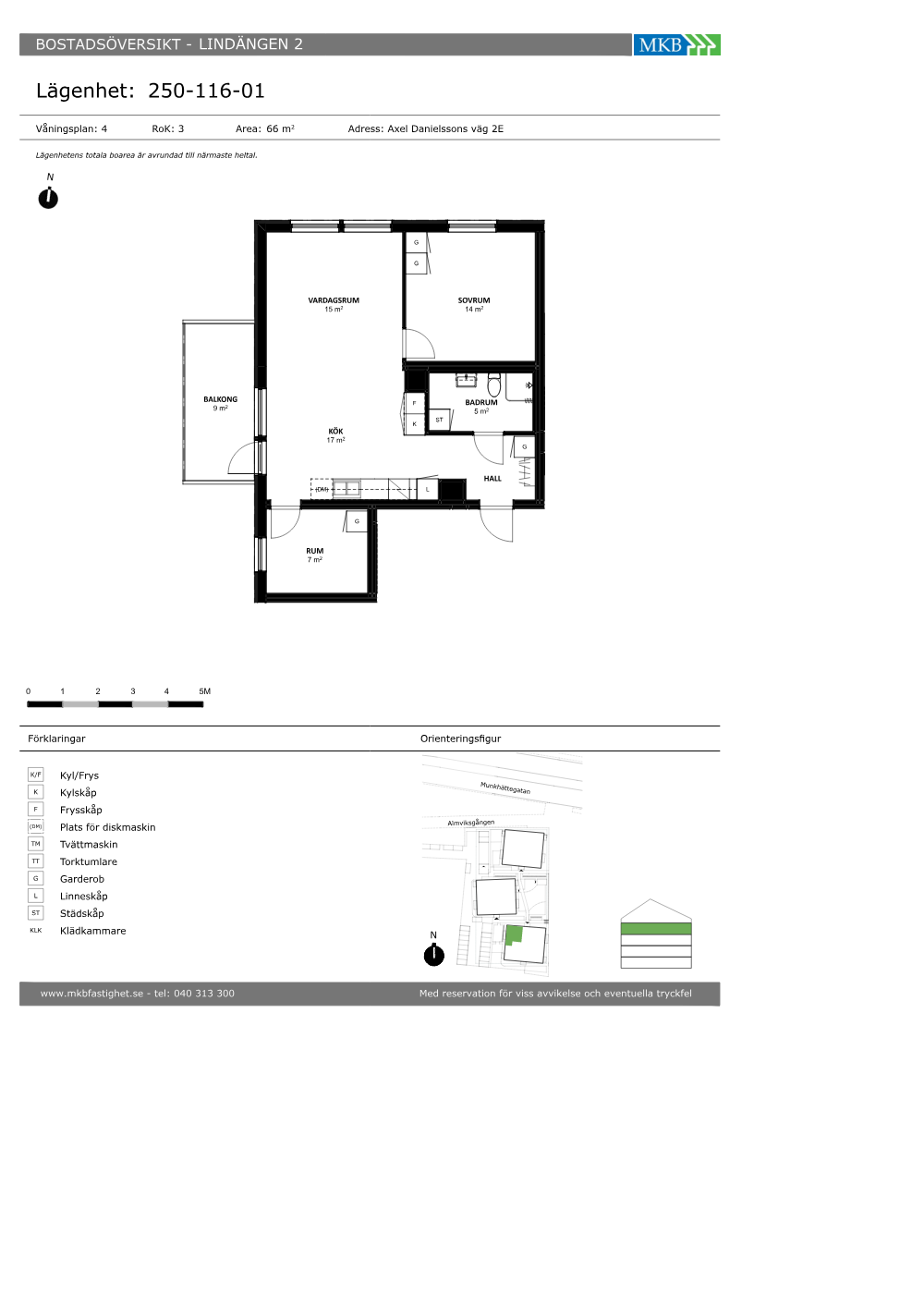
Lägenheten:
Hall
Färg väggar: Vitt
Golv: Mörkt laminat
Förvaringsmöjligheter: Ja
Kök
Utrustning: Keramikhäll spis, fläkt, diskmaskin
Färg på köksinredning: Vitt
Färg väggar: Vitt
Golv: Mörkt laminat
Plats för matbord: Ja
Vardagsrum
Färg väggar: Vitt
Golv: Mörkt laminat
Sovrum 1
Färg väggar: Vitt
Golv: Mörkt laminat
Förvaringsmöjligheter: Ja
Sovrum 2
Färg väggar: Vitt
Golv: Mörkt laminat
Förvaringsmöjligheter: Ja
Badrum
Utrustning: Dusch
Väggar: Helkaklad vitt
Golv: Mörk våtrumsmatta
Övrigt
Säkerhetsdörr: Ja
Förråd: Ja
I hyran ingår: Kabel-TV, värme
Denna lägenhet omfattas av underhållshyra, läs mer om hur detta fungerar och vad det innebär på vår hemsida https://www.mkbfastighet.se/kund/din-bostad/renovering-och-underhall/
Inflyttning
Det datum som presenteras i Ledig fr.o.m. 2026-07-01 är det datum som vi skriver kontrakt från.
Övrigt:
-Hyran avser 2026 års hyresnivå
-Om två personer söker en lägenhet tillsammans, måste både huvudsökande och medsökande var och en klara en (1,0) gånger månadshyran efter skatt.
-Är du boendekund hos MKB idag? Tänk då på att du har tre månaders uppsägningstid om du ska flytta till en annan MKB-lägenhet.