Varmt välkommen till Lindängen!
Nu finns det en härlig 2a med balkong ledig med närhet till den lummiga innergården! Bilderna visar den aktuella lägenheten och är tagna i mars 2026.
---------------------
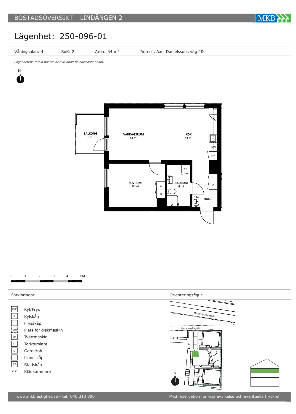
Lägenheten
Hall
Färg väggar: Vita
Golv: Brunt laminat
Förvaringsmöjligheter: Hatthylla och garderob
Kök
Utrustning: Spis med keramikhäll, kyl/frys kombi, spiskåpa.
Färg på köksinredning: Vita stommar med vita luckor
Färg väggar: Vita
Golv: Brunt laminat
Plats för matbord: Ja
Rum
Färg väggar: Vita
Golv: Brunt laminat
Badrum
Utrustning: Dusch
Väggar: Helkaklade vita väggar
Golv: Ljus våtrumsmatta
Övrigt
Säkerhetsdörr: Ja
Förråd: På vinden
I hyran ingår: Kabel-TV, värme
Denna lägenhet omfattas av underhållshyra, läs mer om hur detta fungerar och vad det innebär på vår hemsida https://www.mkbfastighet.se/kund/din-bostad/renovering-och-underhall/
Inflyttning
Det datum som presenteras i Ledig fr.o.m. 2026-06-01 är det datum som vi skriver kontrakt från. Det kan vara möjligt med tidigare inflyttning från och med 2026-04-16. Meddela kundförvaltaren vid besked om kontrakt om du är intresserad av tidigare inflyttning.
Övrigt:
-Hyran avser 2026 års hyresnivå
-Om två personer söker en lägenhet tillsammans, måste både huvudsökande och medsökande var och en klara en (1,0) gånger månadshyran efter skatt.
-Är du boendekund hos MKB idag? Tänk då på att du har tre månaders uppsägningstid om du ska flytta till en annan MKB-lägenhet.
-MKB har endast ett fåtal parkeringsplatser i området vilka det är väldigt hög efterfrågan på. Tillgång till parkering går alltså ej att garantera och ingår inte heller i lägenheten.