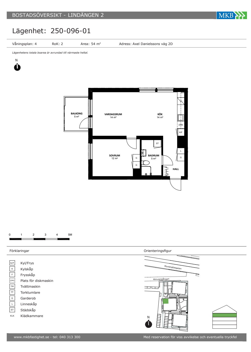
Axel Danielssons väg 2 D

Axel Danielssons väg 2 D

Lindängen

Lägenhet

53.5 kvm

Antal rum 2 rum och kök

Våning 4 av 4

Hyra per månad 8679 kr/mån

Ledig fr.o.m 2026-06-01

Gör en intresseanmälan på Boplats Syd