Varmt Välkommen till Lindängen!
Nu finns det en härlig 1 ROK ledig på Axel Danielssons väg!
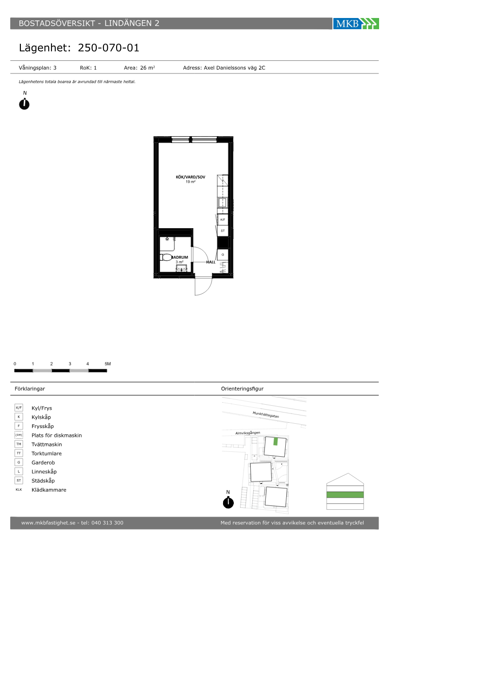
Hall
Färg väggar: Vitt
Golv: Mörkt laminat
Förvaringsmöjligheter: Ja
Kök/ kokvrå
Utrustning: Spis med keramikhäll, kyl/frys kombi, spiskåpa
Färg på köksinredning: Vita luckor
Färg väggar: Vitt
Golv: Mörkt laminat
Plats för matbord: Ja
Rum
Färg väggar: Vitt
Golv: Mörk laminat
Badrum
Utrustning: Dusch
Väggar: Helkaklad vitt
Golv: Ljus våtrumsmatta
Övrigt
Säkerhetsdörr: Ja
Förråd: Ja, på vinden
I hyran ingår: Kabel-TV, värme
Denna lägenhet omfattas av underhållshyra, läs mer om hur detta fungerar och vad det innebär på vår hemsida https://www.mkbfastighet.se/kund/din-bostad/renovering-och-underhall/
Inflyttning
Det datum som presenteras i Ledig fr.o.m. 2026-07-01 är det datum som vi skriver kontrakt från.
Övrigt:
-Hyran avser 2026 års hyresnivå
-Om två personer söker en lägenhet tillsammans, måste både huvudsökande och medsökande var och en klara en (1,0) gånger månadshyran efter skatt.
-Är du boendekund hos MKB idag? Tänk då på att du har tre månaders uppsägningstid om du ska flytta till en annan MKB-lägenhet.
OBS: MKB har begränsat med parkeringsplatser i området!