OBS! Alla bilderna på lägenheten är exempelbilder från en lägenhet med liknande planlösning. Avvikelser förekommer. Exempelbilder läggs upp för att ge en bild av vilken typ av lägenhet det är vi erbjuder men skillnader förekommer bland annat i skick, materialval, utseende och till viss del planlösningen. För att veta mer om hur denna lägenhet ser ut behöver ni gå på visningen och läsa beskrivningen nedan
Varmt Välkommen till Lindängen!
Nu finns det en härlig etta med balkong ledig! Lägenheten hyrs ut i befintligt skick, ingen renovering ska utföras.
Möjlighet till diskmaskin: Nej
Möjlighet till tvättmaskin: Nej
-------------------------
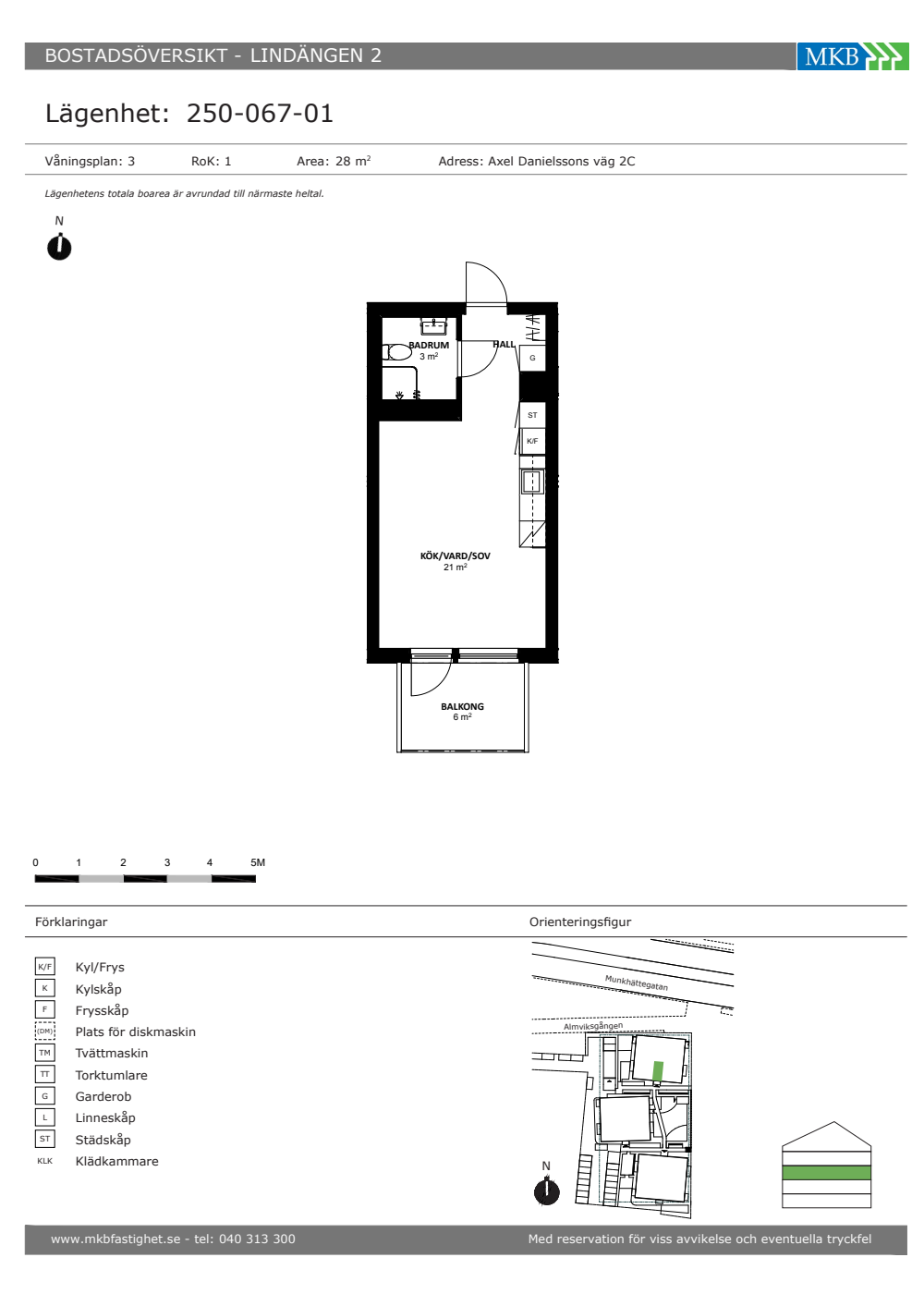
Lägenheten
Hall
Färg väggar: Vitt
Golv: Laminat
Förvaringsmöjligheter: Garderob
kök
Utrustning: Spis med keramikhäll, kombinerad kyl/frys, köksfläkt
Färg på köksinredning: Vitt
Färg väggar: Vitt
Golv: Laminat
Plats för matbord: Nej
Rum
Färg väggar: Vitt
Golv: Laminat
Badrum
Utrustning: Dusch, tvättställ och wc stol
Väggar: Helkaklat vitt
Golv: Grå plastmatta
Övrigt
Säkerhetsdörr: Ja
Förråd: Vinden
I hyran ingår: Kabel-TV, värme
Denna lägenhet omfattas av underhållshyra, läs mer om hur detta fungerar och vad det innebär på vår hemsida https://www.mkbfastighet.se/kund/din-bostad/renovering-och-underhall/
Det datum som presenteras i Ledig fr.o.m. 2026-06-01 är det datum som vi skriver kontrakt från.
Övrigt:
-Hyran avser 2026 års hyresnivå
-Om två personer söker en lägenhet tillsammans, måste både huvudsökande och medsökande var och en klara en (1,0) gånger månadshyran efter skatt.
-Är du boendekund hos MKB idag? Tänk då på att du har tre månaders uppsägningstid om du ska flytta till en annan MKB-lägenhet.