OBS! INGEN VISNING.
Du behöver ta ställning till om du är intresserad baserat på planritningen här i annonsen.
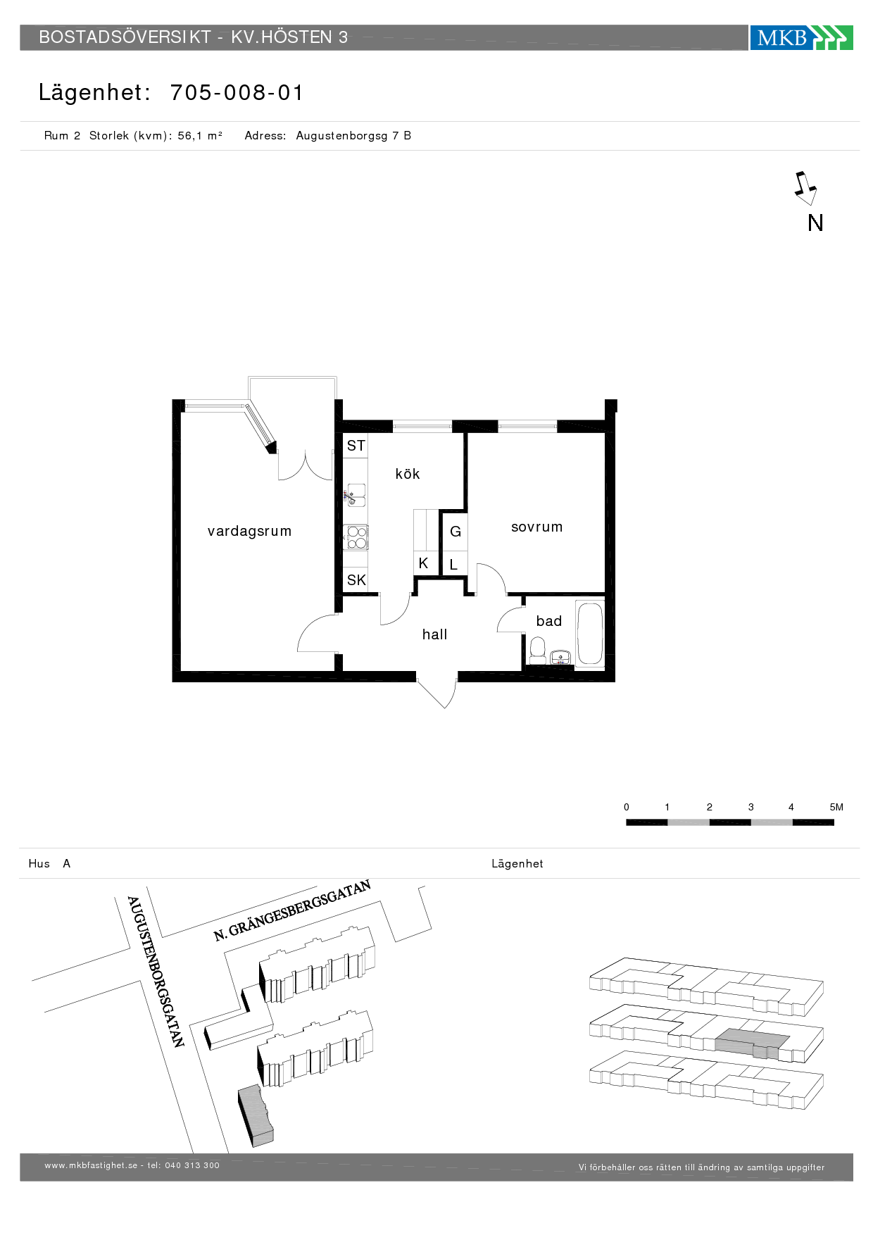
Tänk på att badkaret inte finns kvar och har blivit ersatt med en duschzon efter stambytet.
Hej och välkommen till gröna Augustenborg!
Nu finns en mysig 2:a med balkong ledig att söka.
Lägenheten är belägen på andra våningen i ett trevåningshus utan hiss och har en praktisk planlösning.
Viktigt att veta:
Det finns ingen möjlighet att installera diskmaskin eller tvättmaskin i lägenheten.
Följande ska göras i lägenheten:
- Nya köksluckor kommer att monteras
- Sprutlackera köksstommar och garderobsstommar
- Alla väggar målas vita
- Nytt parkettgolv i sovrum och vardagsrum
- Nytt vinylgolv i hall och kök
- Nya vita innerdörrar (Vardagsrums dörr behålls och sprutlackeras vit)
- Ny köksfläkt monteras
Preliminär tidsplan är färdigställande före inflyttning, men arbete kan förekomma efter inflyttning.
Mer information om lägenheten:
Hall
Färg väggar: Vita
Golv: Vinyl plastmatta
Kök
Utrustning: Spis med keramik häll, fläkt, kyl/frys
Färg på köksinredning: Ljusgrå
Färg väggar: Vita
Golv: Vinyl plastmatta
Plats för matbord: Ja
Vardagsrum
Färg väggar: Vita
Golv: Parkett
Sovrum
Färg väggar: Vita
Golv: Parkett
Förvaringsmöjligheter: Garderober
Badrum
Utrustning: Tvättställ, wc, spegelskåp, dusch (OBS finns ej badkar.)
Väggar: Kakel vit/grå
Golv: Klinker grå
Övrigt
Säkerhetsdörr: Ja
Tvättmöjligheter: Ja, i källare
Förråd: Ja, i källare
Internet: MKB Net
Parkering: Finns att hyra i separat kö
Denna lägenhet omfattas av underhållshyra, läs mer om hur detta fungerar och vad det innebär på vår hemsida https://www.mkbfastighet.se/kund/din-bostad/renovering-och-underhall/
Inflyttning
Det datum som presenteras i Ledig fr.o.m. är det datum som vi skriver kontrakt från.
OBS! Nya riktlinjer gällande internflytt inom MKB. Från 1/1–2024 är uppsägningstiden tre hela kalendermånader.
Om två personer söker en lägenhet tillsammans, måste både huvudsökande och medsökande var och en klara en (1,0) gång månadshyran efter skatt.