Lägenheten hyrs ut i befintligt skick dvs. såsom ni ser den på visningstillfället. I denna lägenhet går det inte att installera diskmaskin.
LÄGENHETEN
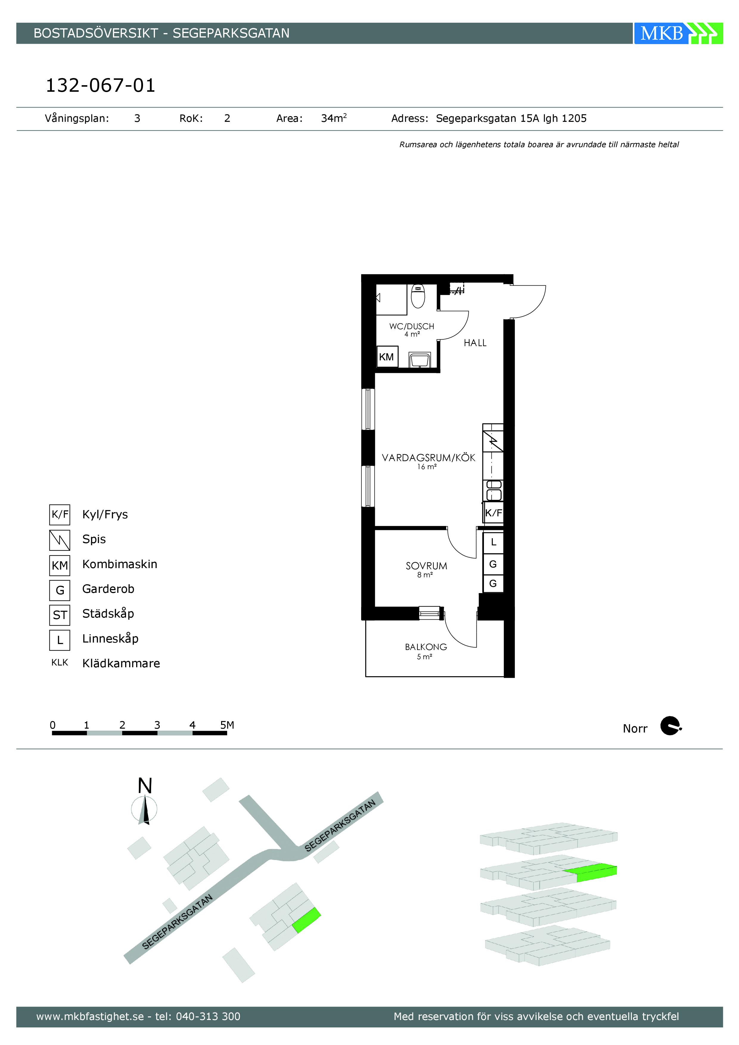
Hall
Färg väggar: vitt
Golv: laminatgolv
Kök/ kokvrå
Utrustning: Spis med keramikhäll, spiskåpa, kyl/frys
Färg på köksinredning: vit
Färg väggar: vit
Golv: laminatgolv
Plats för matbord: nej
Vardagsrum
Färg väggar: vit
Golv: laminatgolv
Sovrum
Färg väggar: vit
Golv: laminatgolv
Förvaringsmöjligheter: Garderober
Badrum
Utrustning: tvättställ, WC, dusch med glasdörrar, kombitvättmaskin
Väggar: kakel
Golv: klinker
Övrigt
Säkerhetsdörr: ja
Förråd: ja, i separat uppvärmd byggnad
I hyran ingår: Kabel-TV, värme
Varmvatten: I denna fastighet tillämpar vi individuell mätning och debitering av varmvattenförbrukning.
Denna lägenhet omfattas av underhållshyra, läs mer om hur detta fungerar och vad det innebär på vår hemsida https://www.mkbfastighet.se/kund/din-bostad/renovering-och-underhall/
Inflyttning
Det datum som presenteras i Ledig fr.o.m. är det datum som vi skriver kontrakt från.