Välkommen på visning till denna trevliga tvårummare.
Lägenheten hyrs ut i befintligt skick
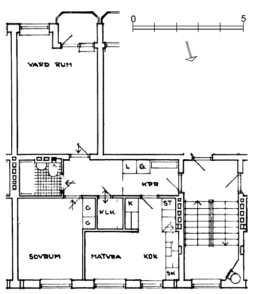
Lägenheten
Hall
Färg väggar: Beige
Golv: Grå klinker
Förvaringsmöjligheter: Ja, klädkammare och garderob
Vardagsrum
Färg väggar: Beige
Golv: Parkett
Kök
Utrustning: Spis med keramikhäll, fläkt, kyl/frys,
Färg på köksinredning: Vit
Färg väggar: Vit
Golv: Plastgolv ljus träimitation
Sovrum
Färg väggar: Ljusgrön
Golv: Parkett
Förvaringsmöjligheter: Ja
Badrum
Utrustning: Wc-stol, tvättställ, badkar
Väggar: Vit kakel
Golv: Ljusgrå klinker
Övrigt
Säkerhetsdörr: Ja
Förråd: Ja
I hyran ingår: Kabel-TV, värme, varmvatten
Finns det möjlighet att installera diskmaskin: Nej
Finns det möjlighet att installera tvättmaskin/torktumlare: Nej
Hyran för lägenheten avser 2026 års hyresnivå.
Denna lägenhet omfattas av underhållshyra, läs mer om hur detta fungerar och vad det innebär på vår hemsida https://www.mkbfastighet.se/kund/din-bostad/renovering-och-underhall/
Inflyttning
Det datum som presenteras i Ledig fr.o.m. är det datum som vi skriver kontrakt från.
OBS! Nya riktlinjer gällande internflytt inom MKB. Från 1/1–2024 är uppsägningstiden tre hela kalendermånader vid internflytt inom MKB.