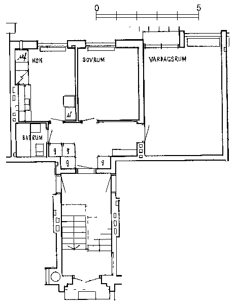
Välkommen till en ljus och välplanerad enkelsidig lägenhet om 53,6 kvm med balkong i väst belägen på första våningen.
Renovering utförs innan ny hyresgäst tillträder.
- Ny plastmatta i hall kök och sovrum.
- Kök och sovrum målas om i vitt.
Hall:
Färg väggar: Vita
Golv: plastmatta
Förvaring: Klädkammare
Kök:
Utrustning: Spis med keramikhäll, fläkt och kyl/frys
Färg på köksinredning: trä
Färg väggar: Vit
Golv: plastmatta
Vardagsrum
Färg väggar: Ljusa
Golv: Parkett
sovrum
Färg väggar: Ljusa
Golv: plastmatta
Badrum
Utrustning: dusch, Wcstol, tvättställ
Väggar: Hel
Golv: Klinker
Övrigt:
Säkerhetsdörr: Ja
Förråd: Vind och källare
Balkong: Finns
Väderstreck: V
Denna lägenhet omfattas av underhållshyra, läs mer om hur detta fungerar och vad det innebär på vår hemsida. https://www.mkbfastighet.se/kund/din-bostad/renovering-och-underhall/
Om två personer söker en lägenhet tillsammans, måste både huvudsökande och medsökande var och en klara en (1,0) gång månadshyran efter skatt.
OBS, det kommer ske ett kommande tappvatten byte där vi installerar individuell mätning av varmvatten