2-våningslägenhet i populära Rörsjöstaden!
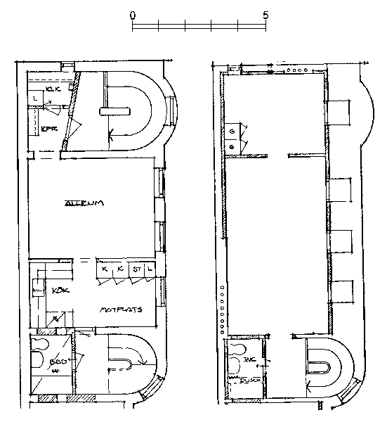
HALL, nedre plan
Golv: ljus plastmatta
Väggar: vita
Klädkammare
Säkerhetsdörr
VARDAGSRUM, nedre plan
Golv: parkett
Väggar: vita
KÖK, nedre plan
Golv: ljus plastmatta
Väggar: vita
Gråa köksluckor och vitt kakel
Utrustning: diskmaskin, kyl/frys, spis med keramikhäll, fläkt
BADRUM, nedre plan
Golv: shackrutig klinker
Väggar: helkaklade vita
Utrustning: badkar, wc-stol, spegelskåp, handfat
HALL, övre plan
Golv: parkett
Väggar: vita
BADRUM, övre plan
Golv: shackrutig klinker
Väggar: helkaklade vita
Utrustning: dusch, wc-stol, spegelskåp, handfat
SOVRUM 1, övre plan
Golv: kommer läggas parkett
Väggar: vita
SOVRUM 2, övre plan
Golv: plastmatta, träimitation
Väggar: vita
Förvaringsmöjligheter: garderober
- Hiss finns ej
- Förråd finns på vinden
- Tvättstuga finns i källare
Tidigare inflyt möjlig, ställ fråga på visningen vilket datum kan vara aktuell.