Varmt Välkommen till Gullviksborg!
Nu finns det en härlig tvårumslägenhet ledig
Renovering:
Efter inflyttning kommer våra leverantörer att boka tid med dig för att åtgärda följande:
- Byte av golv i hall, sovrum samt vardagsrum.
- Installation av 3 st Martin-dörrar i kök, badrum samt sovrum.
Observera att leverantören kommer ta med sig de gamla innerdörrarna under den tiden. Någon ersättningsdörr under denna period går inte att få.
------------------------------------------------------------
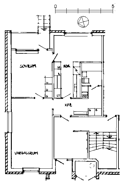
Lägenheten:
Hall
Färg väggar: Vita väggar
Golv: Träimitation plastmatta
Förvaringsmöjligheter: Vita luckor
Kök
Utrustning: Spis med keramikhäll, kyl/frys kombi, kolfilterfläkt
Färg på köksinredning: Beige luckor
Färg väggar: Vita väggar
Golv: Träimitation plastmatta
Plats för matbord: Ja
Rum
Färg väggar: Vita väggar
Golv: Träimitation plastmatta
Vardagsrum
Färg väggar: Vita väggar
Golv: Parkett
Badrum
Utrustning: Duschkabin i plast
Väggar: Halvkaklat vitt
Golv: Grå klinker
Övrigt
Säkerhetsdörr: Nej
Förråd: Källare
I hyran ingår: Kabel-TV, värme
Denna lägenhet omfattas av underhållshyra, läs mer om hur detta fungerar och vad det innebär på vår hemsida https://www.mkbfastighet.se/kund/din-bostad/renovering-och-underhall/
Inflyttning
Det datum som presenteras i Ledig fr.o.m. 2026-07-01 är det datum som vi skriver kontrakt från.
Hyran avser 2026 års hyresnivå
-Om två personer söker en lägenhet tillsammans, måste både huvudsökande och medsökande var och en klara en (1,0) gånger månadshyran efter skatt.
-Är du boendekund hos MKB idag? Tänk då på att du har tre månaders uppsägningstid om du ska flytta till en annan MKB-lägenhet.